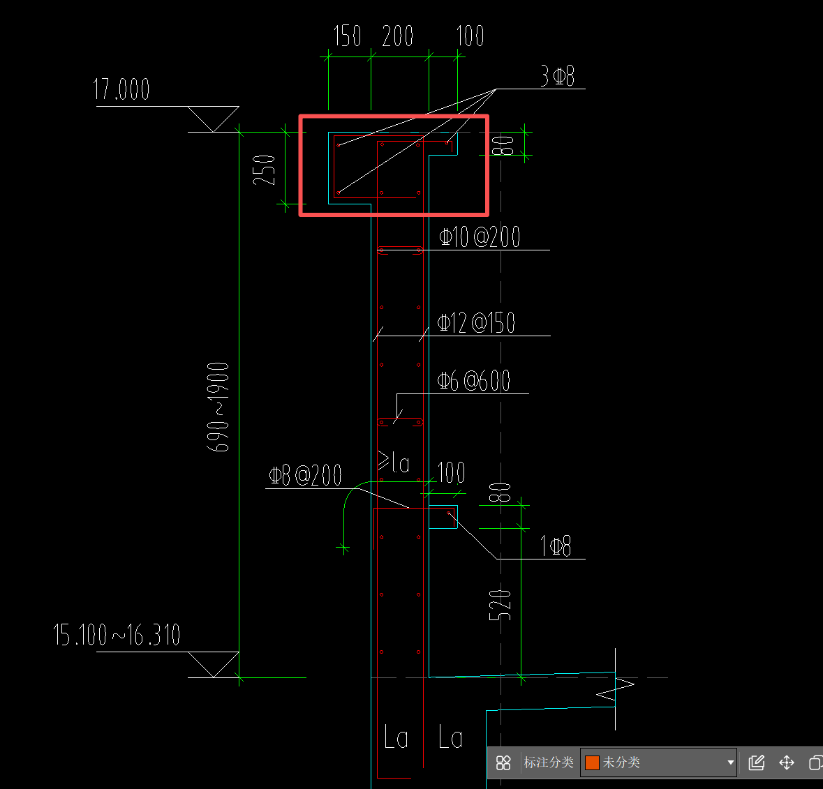
答疑:请问一下,应该用圈梁+剪力墙画还是直接异形剪力墙,用圈梁画剪力墙的箍筋怎么设置的

提问网友:匿名用户
提问日期:2025-11-28 14:47:06

墙画


解答网友:十年工程人

白银专家

剪力墙加异型圈梁/梁

解答网友:放学丶别走

不行就用异形剪力墙构件画,一步到位。

解答网友:雪花飘 飘

铂金专家

上部用异形挑檐定义+剪力墙

解答网友:星霜荏苒

钻石专家

剪力墙+异形挑檐

0

评论0

请先
中国石油天然气集团有限公司石油建设安装工程费用定额2022版.pdf
中国石油天然气集团有限公司石油建设安装工程费用定额2022版.pdf
10分钟前 有人购买 去瞅瞅看
没有账号?注册  忘记密码?

社交账号快速登录

微信扫一扫关注
扫码关注后会自动登录网站