答疑:麻烦各位了

提问网友:M
提问日期:2025-11-28 11:06:44

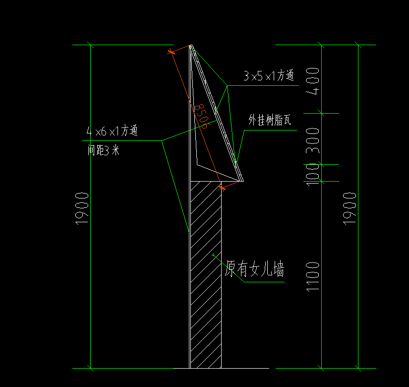
请问各位40*60*1的方通吨数不是总长度除以间距3米*米数*理论重量吗,为什么还要+1?间距重量


解答网友:十年工程人

白银专家

3米一个间距

举个例子:地上放三根火柴,有两个3m的间距。

解答网友:陈工

钻石专家

五个手指,四个空隙的。

0

评论0

请先
2025.07.31-农业农村部《高标准农田建设底数核查相关技术规则的通知》
2025.07.31-农业农村部《高标准农田建设底数核查相关技术规则的通知》
刚刚 有人购买 去瞅瞅看
没有账号?注册  忘记密码?

社交账号快速登录

微信扫一扫关注
扫码关注后会自动登录网站