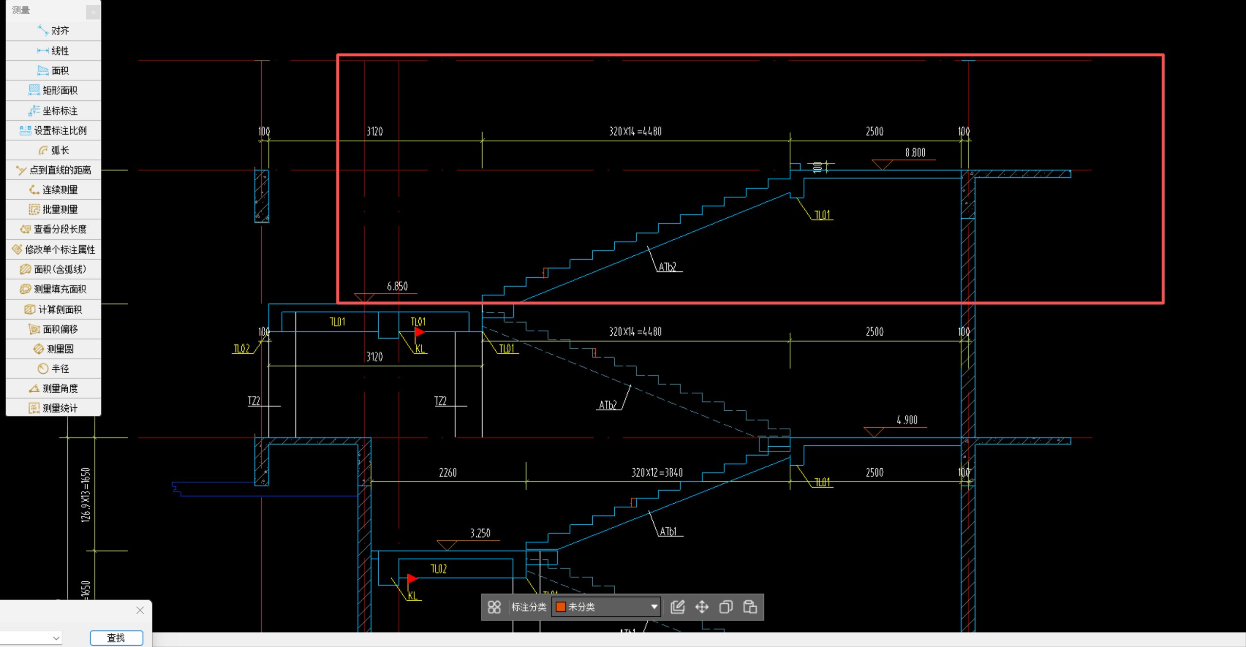
答疑:我只画圈住的这段怎么画啊?

提问网友:努力搬砖的康康
提问日期:2025-11-27 16:48:23

画啊答疑解惑


解答网友:Bel

专家

用直行单跑+现浇板绘制广联达服务新干线

解答网友:雪花飘 飘

铂金专家

直行单跑楼梯

解答网友:陈工

钻石专家

定义时只输一半的。

0

评论0

请先
110kV送电线路常用杆塔工程图集 设计·计算·施工图
110kV送电线路常用杆塔工程图集 设计·计算·施工图
9分钟前 有人购买 去瞅瞅看
没有账号?注册  忘记密码?

社交账号快速登录

微信扫一扫关注
扫码关注后会自动登录网站