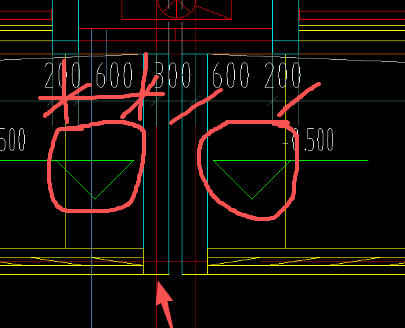
答疑:这个是采光井标高还是墙的标高

提问网友:汉江河堤
提问日期:2025-11-14 10:54:12

采光井


解答网友:米老鼠

铂金专家

井标高

然后根据 室外地平标高与这个标高去对比就可以知道了

如果还是不清楚,可以直接咨询设计 人员去确定

0

评论0

请先
正式版 T/CBDA 18-2018 建筑装饰装修室内吊顶支撑系统技术规 (附条文说明、OCR、完整版).pdf
正式版 T/CBDA 18-2018 建筑装饰装修室内吊顶支撑系统技术规 (附条文说明、OCR、完整版).pdf
1分钟前 有人购买 去瞅瞅看
没有账号?注册  忘记密码?

社交账号快速登录

微信扫一扫关注
扫码关注后会自动登录网站