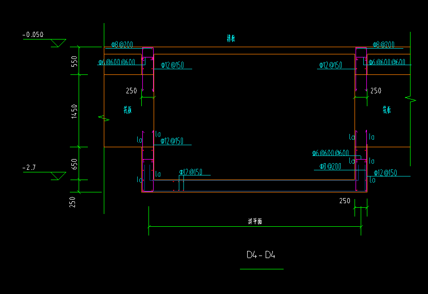
答疑:这个用剪力墙设置吗,中间是不是要断开,钢筋怎么设置

提问网友:再学一下
提问日期:2025-11-14 10:56:25

剪力墙


解答网友:十年工程人

不能用剪力墙  暗梁处理把  中间是断开的  

解答网友:钢筋撑起半边天

钻石专家

中间是断开的

0

评论0

请先
2024.10.27-重庆市《城乡公共服务设施规划规范》DB50_T 543-2024 (1)
2024.10.27-重庆市《城乡公共服务设施规划规范》DB50_T 543-2024 (1)
3分钟前 有人购买 去瞅瞅看
没有账号?注册  忘记密码?

社交账号快速登录

微信扫一扫关注
扫码关注后会自动登录网站