BIM
BIM吧
整体模型
族
其他资料
Dynamo
设计
方案
整体场景
单体模型
RHINO
施工图设计
结构
机电设计
材质渲染
D5素材
ENS素材专区
lumion素材
PS素材
规范图集
标准规范
行业图集
教程
视频
软件
Office
编程
造价
施工技术
计量计价
造价答疑
在线工具
管理
登录
注册
搜索
当前位置:
首页
造价
造价答疑
正文
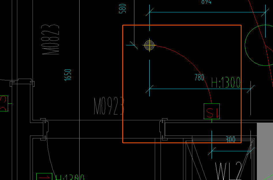
答疑:这是什么
3分钟前
造价答疑
1
推广
提问网友:fei
提问日期:2025-11-13 15:53:38
解答网友:行走大陆
白银专家
水压 用于设计要求的
0
上一篇
答疑:连梁上面怎么布置不了墙面装修
下一篇
答疑:哪位老师有南方CASS的软件,麻烦发我邮箱215577661@qq.com。谢谢
猜你喜欢
造价答疑
答疑:这个地方怎么没有电源过来
提问网友:O提问日期:2025-11-13 16:05:41解答网友:泉看图上表示的是走的桥架解...
11秒前
0
造价答疑
答疑:此处YJV-4*95+1*50电缆头有几个
提问网友:芳华如梦提问日期:2025-11-13 16:06:14电缆头是1个回路2个电缆头吗?此...
16秒前
0
造价答疑
答疑:异形剪力墙绘制
提问网友:走呀走呀走提问日期:2025-11-13 16:06:55绘制异形剪力墙时,怎么把红色...
19秒前
0
造价答疑
答疑:请问这三个清单怎么套定额呢
提问网友:qwerqwerqe提问日期:2025-11-13 16:09:152025-11-13 16:12:36 补充广东...
29秒前
0
造价答疑
答疑:广东定额,变频水泵套项问题
提问网友:Otto Apocalypse提问日期:2025-11-13 16:10:57如图片所示,是2台泵+一...
34秒前
0
造价答疑
答疑:这两个是同一个概念吗,是否有矛盾
提问网友:fei提问日期:2025-11-13 15:54:24解答网友:行走大陆 ...
2分钟前
0
评论
0
请先
登录
国网输变电工程工程量计量计价规范(2023年版)Q/GDW 11337—2023代替Q/GDW 11337—2014
1分钟前 有人购买
去瞅瞅看
在线客服
升级VIP
返回顶部
没有账号?
注册
忘记密码?
社交账号快速登录
已有账号?
登录
社交账号快速登录
微信扫一扫关注
扫码关注后会自动登录网站
使用其他方式登录/注册
评论0