BIM
BIM吧
整体模型
族
其他资料
Dynamo
设计
方案
整体场景
单体模型
RHINO
施工图设计
结构
机电设计
材质渲染
D5素材
ENS素材专区
lumion素材
PS素材
规范图集
标准规范
行业图集
教程
视频
软件
Office
编程
造价
施工技术
计量计价
造价答疑
在线工具
管理
登录
注册
搜索
当前位置:
首页
造价
造价答疑
正文
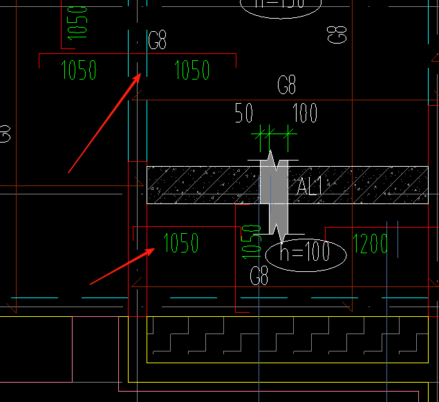
答疑:这两个负筋的受力范围是哪里到哪里
3天前
造价答疑
3
推广
提问网友:汉江河堤
提问日期:2025-11-11 11:29:57
已采纳
解答网友:走出工地
白银专家
到两端墙/梁位置。
0
上一篇
答疑:大佬们请教一下,这个涵洞一字墙是红色框里的,还是黄色框里的
下一篇
答疑:请问这个数字式车辆探测器(闸机内)应该套什么清单定额
猜你喜欢
造价答疑
各位前辈你好,我才进入施工单位俩年左作为土建小白,对收方这个问题还是不太了解以此请教
什么情况需要收方? 收方重点应该在哪里? 收方应该记录什么数据需不需要在...
2天前
4
造价答疑
答疑:搜矩形梁出来好几个是随便选还是怎么的
提问网友:絮语提问日期:2025-11-11 14:19:36解答网友:xagcc ...
3天前
6
造价答疑
答疑:风管除锈刷漆知道表面积怎么 转换成kg?
提问网友:水冷冰凉提问日期:2025-11-11 14:20:30风管规格6309*400,长度13米,如...
3天前
3
造价答疑
答疑:人防电气里面的,画圈是什么图例?
提问网友:放生提问日期:2025-11-11 14:21:03解答网友:蓝鲸 ...
3天前
3
造价答疑
答疑:热浸镀锌管可以用热镀锌的信息价吗
提问网友:小小张提问日期:2025-11-11 14:22:43解答网友:xagcc ...
3天前
3
造价答疑
答疑:马凳筋、梯子筋、定位筋是否需要计入钢筋工程量内
提问网友:Eagle提问日期:2025-11-11 14:23:53马凳筋、梯子筋、定位筋是否需要计...
3天前
2
评论
0
请先
登录
DLT 2724-2023架空输电线路三维地理信息系统技术规范
5分钟前 有人购买
去瞅瞅看
在线客服
升级VIP
返回顶部
没有账号?
注册
忘记密码?
社交账号快速登录
已有账号?
登录
社交账号快速登录
微信扫一扫关注
扫码关注后会自动登录网站
使用其他方式登录/注册
评论0