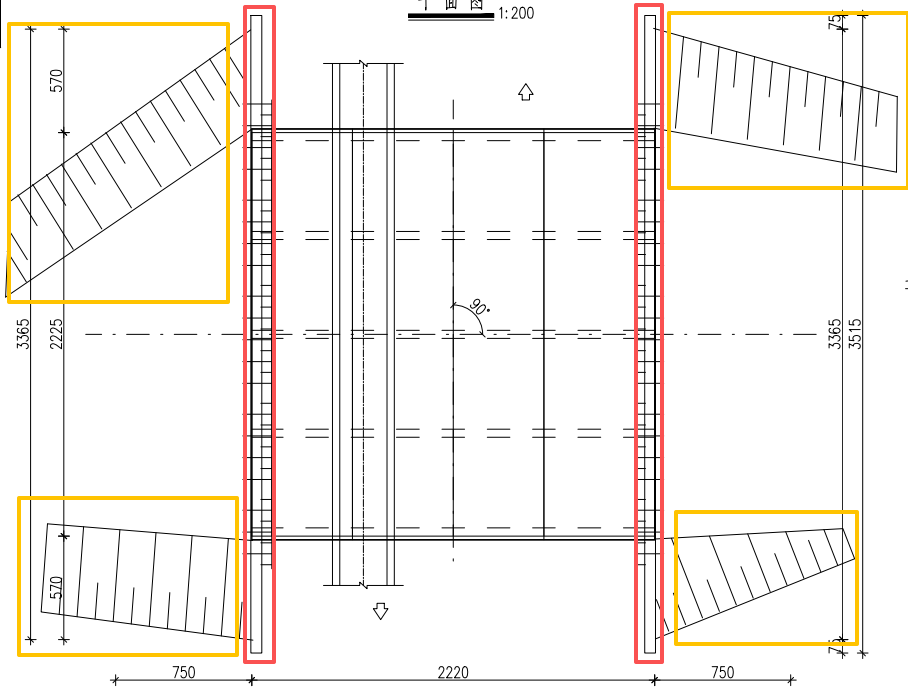
答疑:大佬们请教一下,这个涵洞一字墙是红色框里的,还是黄色框里的

提问网友:管理员
提问日期:2025-11-11 11:26:19

洞一


已采纳
解答网友:雪莲

铂金专家

这个涵洞一字墙是红色框里的

0

评论0

请先
25S402室内管道支架及吊架
25S402室内管道支架及吊架
3分钟前 有人购买 去瞅瞅看
没有账号?注册  忘记密码?

社交账号快速登录

微信扫一扫关注
扫码关注后会自动登录网站