答疑:水平支撑和系杆要查哪种钢材

提问网友:.
提问日期:2025-11-07 09:56:07

水平支撑


已采纳
解答网友:小孟

白银专家

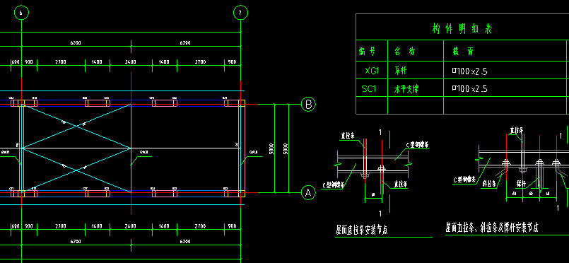
右上角不是标明了吗?方管100*2.5

解答网友:可遇难求

钻石专家

方钢管100*100*2.5

解答网友:天下有雪

黄金专家

方钢管100*100*2.5厚

解答网友:《理想之城》

白银专家

方管 口100*2.5

0

评论0

请先
通桥(2017)2101-II时速160公里客货共线铁路预制后张法简支T梁(钢横梁人行道方案)24m
通桥(2017)2101-II时速160公里客货共线铁路预制后张法简支T梁(钢横梁人行道方案)24m
刚刚 有人购买 去瞅瞅看
没有账号?注册  忘记密码?

社交账号快速登录

微信扫一扫关注
扫码关注后会自动登录网站