提问网友:火火
提问日期:2025-11-05 09:23:59

解答网友:钢筋撑起半边天
钻石专家
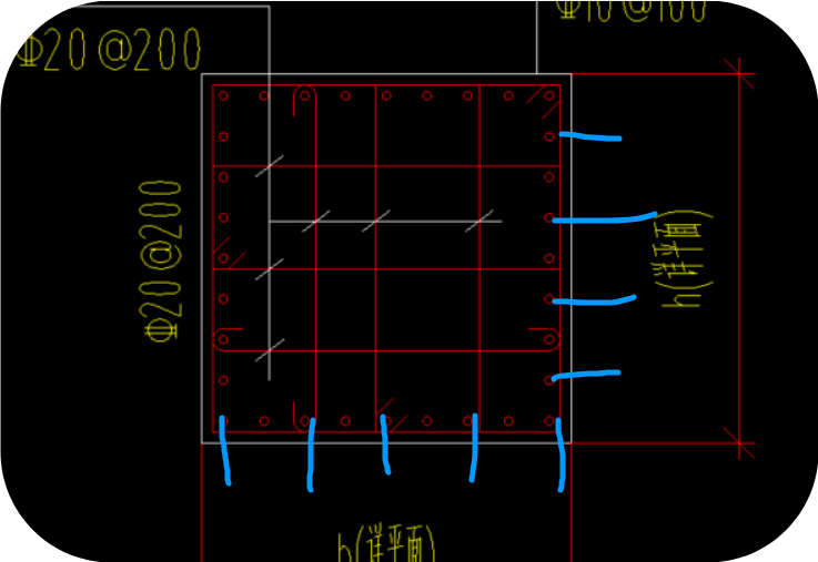
是指隔一根钢筋拉一根
解答网友:GXZ
钻石专家
应该是内箍筋与内拉筋错开安装
解答网友:ㅤㅤ
专家
用来计算箍筋肢数的。参考用法:(b边中部点钢筋数量)/2+2=b边箍筋肢数,截图b边的肢数=7/2+2=5,h边肢数同理,总箍筋肢数为5*5
解答网友:星辰大海
钻石专家
算量,正常输入,施工考虑
解答网友:造价达达
就是在布置内箍筋(或拉筋)时,按照“隔一根纵筋(或横向钢筋)就设置一根拉筋”的方式进行排列。以图中情况为例,比如有纵筋(或横向分布筋等)按一定间距布置,拉筋不是每一个纵筋交叉点都设置,而是间隔一个纵筋交叉点设置一个拉筋,这样可以在满足结构受力和构造要求的前提下,合理布置钢筋,优化钢筋用量等。简单讲,就是隔一根钢筋的位置才设置一道拉筋,起到拉结钢筋、增强构件整体性等作用。




评论0