提问网友:玛咔巴咔
提问日期:2025-11-04 17:25:17
解答网友:大家广联
钻石专家
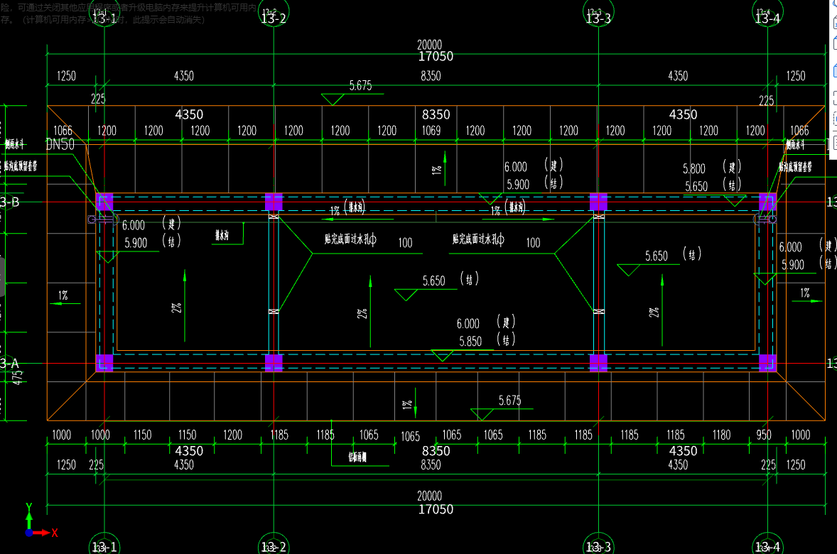
屋面建筑找坡层找坡坡度比
解答网友:Ruin
专家
排水沟用板和栏板绘制,百分号是表示屋面放坡坡度
解答网友:GXZ
钻石专家
百分号是屋面找坡的方向及百分率,可以计算出找坡或保温层的平均厚度,及:找坡方向长度×2%÷2+起始边厚度,这种屋面有找坡或保温等防水形成的排水沟,是不需要计算的
解答网友:星辰大海
钻石专家
坡度
解答网友:独行者
铂金专家
建筑找坡,不用建模。
提问网友:玛咔巴咔
提问日期:2025-11-04 17:25:17
解答网友:大家广联
钻石专家
屋面建筑找坡层找坡坡度比
解答网友:Ruin
专家
排水沟用板和栏板绘制,百分号是表示屋面放坡坡度
解答网友:GXZ
钻石专家
百分号是屋面找坡的方向及百分率,可以计算出找坡或保温层的平均厚度,及:找坡方向长度×2%÷2+起始边厚度,这种屋面有找坡或保温等防水形成的排水沟,是不需要计算的
解答网友:星辰大海
钻石专家
坡度
解答网友:独行者
铂金专家
建筑找坡,不用建模。
评论0