答疑:想问一下各位大神,我这个短柱纵筋怎么设置弯折呢?

提问网友:啵一口奶茶
提问日期:2025-11-04 10:14:38

短柱

这个柱子是在底层的,上面无梁无板,做钢结构

2025-11-04 10:17:35 补充

图纸要求弯折15*d,怎么设置弯折呢


解答网友:SONG

不用设,施工一般不做

解答网友:小野猫

铂金专家

看图纸要求吧

解答网友:SOFTICE

铂金专家

钢结构

解答网友:十年工程人

答疑解惑

解答网友:陈工

钻石专家

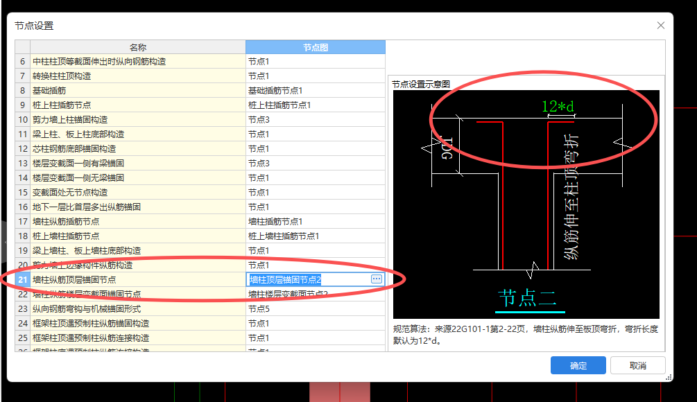
方法如下:

广联达服务新干线

建筑行业快速问答平台-答疑解惑

0

评论0

请先
18G901系列图集下载,18G901高清版图集百度网盘免费下载
18G901系列图集下载,18G901高清版图集百度网盘免费下载
10分钟前 有人购买 去瞅瞅看
没有账号?注册  忘记密码?

社交账号快速登录

微信扫一扫关注
扫码关注后会自动登录网站