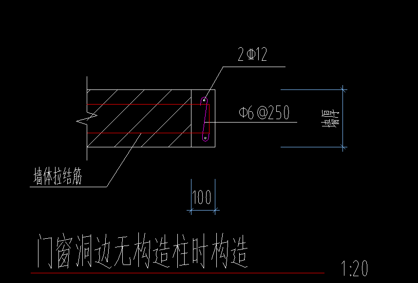
答疑:门窗洞无构造柱时构造

提问网友:那那那呢确实
提问日期:2025-10-13 10:55:53

请问图中如何绘制构造柱


已采纳
解答网友:杨华

白银专家

构造柱-修改为抱框柱;

解答网友:轻舟淡月

铂金专家

也用构造柱定义就行

解答网友:GXZ

钻石专家

单门窗洞口边缘距离混凝土结构小于十公分时,就是要做这种构造柱

0

评论0

请先
铁路隧道全工序机械化设计施工技术规程(Q/CR 9265-2025)2025.5.13初排(无水印).pdf
铁路隧道全工序机械化设计施工技术规程(Q/CR 9265-2025)2025.5.13初排(无水印).pdf
10分钟前 有人购买 去瞅瞅看
没有账号?注册  忘记密码?

社交账号快速登录

微信扫一扫关注
扫码关注后会自动登录网站