答疑:异形承台钢筋怎么布置

提问网友:Leadering
提问日期:2025-10-12 17:23:31

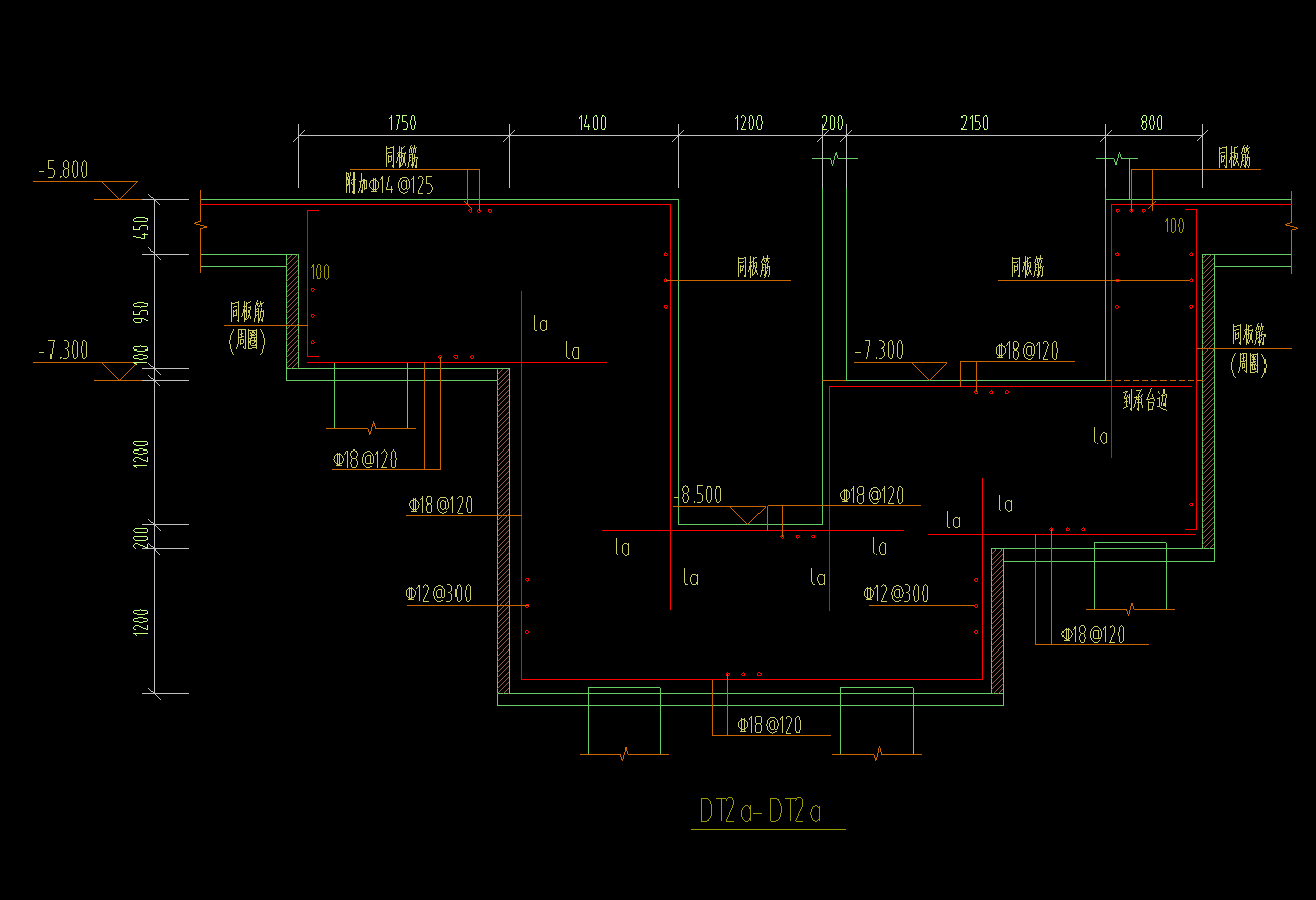
构件绘制各位大佬,这种结构的承台,应该用什么构件绘制,并能让钢筋如图布置?


解答网友:GXZ

钻石专家

选择集水坑布置,并设置好它们之间的不同标高

0

评论0

请先
DL/T 2162-2020 用户参与需求响应基线负荷评价方法
DL/T 2162-2020 用户参与需求响应基线负荷评价方法
10分钟前 有人购买 去瞅瞅看
没有账号?注册  忘记密码?

社交账号快速登录

微信扫一扫关注
扫码关注后会自动登录网站