提问网友:欣520(男主)
提问日期:2025-10-04 21:38:18

解答网友:GXZ
钻石专家
1砌体加筋定义布置,2用相应的接缝长度乘宽度,3在布置构造柱前,是要先布置墙,其它就没有先后要求,4属性中可以定义输入,5面部钢筋就是自定义范围布置,负筋属性中可以设置,6可以用剪力墙或栏板定义布置,垂直的多边形钢筋在属性其它钢筋里编辑
解答网友:雪花飘 飘
铂金专家
1,如果是通长筋,在砌体墙,属性输入
2,在报表查看
3,先绘制砌体墙,再绘制构造柱,圈梁
4,看结构说明确定
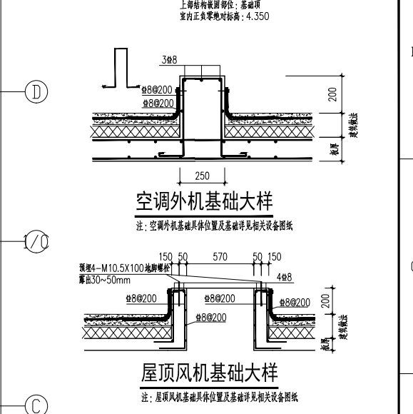
5,屋面的空调外机基础用栏板绘制
6,是的




评论0