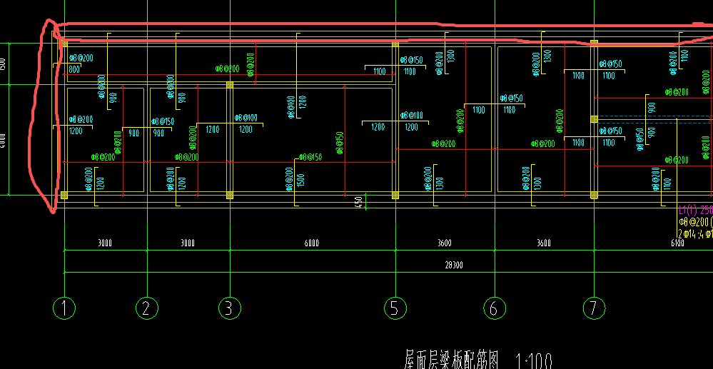
答疑:请问板的范围到哪?图中这里属于板的范围吗?

提问网友:Soobin
提问日期:2025-10-04 14:14:29

答疑解惑


解答网友:xagcc

钻石专家

是的,外围黄线就是边的边沿。

解答网友:钢筋撑起半边天

钻石专家

外挑处板的范围是同跨内负筋(跨板受力筋)的布置范围

广联达服务新干线

解答网友:雪花飘 飘

铂金专家

是的

解答网友:nh

钻石专家

圈内是挑板

0

评论0

请先
高清、正式版 DGJ32/TJ194-2015 江苏省绿色建筑室内环境检测技术标准(附条文说明).pdf
高清、正式版 DGJ32/TJ194-2015 江苏省绿色建筑室内环境检测技术标准(附条文说明).pdf
9分钟前 有人购买 去瞅瞅看
没有账号?注册  忘记密码?

社交账号快速登录

微信扫一扫关注
扫码关注后会自动登录网站