提问网友:kkk
提问日期:2025-10-04 14:32:49
解答网友:钢筋撑起半边天
钻石专家
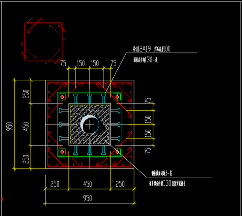
2肢箍 拉筋截面编辑里去画出来
解答网友:SOFTICE
黄金专家
解答网友:xagcc
钻石专家
按2*2肢箍筋定义,其他的都需要在其它钢筋中计算处理的。
解答网友:GXZ
钻石专家
柱在属性肢数中输入2,再点属性下方截面编辑,在弹出来的编辑框对应设计布置钢筋或拉筋
解答网友:nh
钻石专家
解答网友:雪花飘 飘
铂金专家
外箍+拉钩
提问网友:kkk
提问日期:2025-10-04 14:32:49
解答网友:钢筋撑起半边天
钻石专家
2肢箍 拉筋截面编辑里去画出来
解答网友:SOFTICE
黄金专家
解答网友:xagcc
钻石专家
按2*2肢箍筋定义,其他的都需要在其它钢筋中计算处理的。
解答网友:GXZ
钻石专家
柱在属性肢数中输入2,再点属性下方截面编辑,在弹出来的编辑框对应设计布置钢筋或拉筋
解答网友:nh
钻石专家
解答网友:雪花飘 飘
铂金专家
外箍+拉钩
评论0