答疑:钢结构中墙梁布置问题

提问网友:小小
提问日期:2025-10-03 14:06:11

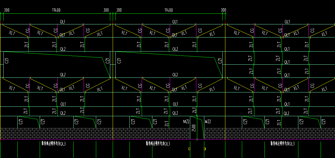
结构中,墙梁如何定义?是钢梁来定义吗?

2025-10-03 15:00:58 补充

钢结构


解答网友:xagcc

钻石专家

截图上传看看是不是墙檩条吧

解答网友:杨华

白银专家

用檩条定义墙面檩条;

0

评论0

请先
DG/TJ 08-2441-2024 地下车库联络道设计标准-建筑标准 - 地方其他
DG/TJ 08-2441-2024 地下车库联络道设计标准-建筑标准 - 地方其他
8分钟前 有人购买 去瞅瞅看
没有账号?注册  忘记密码?

社交账号快速登录

微信扫一扫关注
扫码关注后会自动登录网站