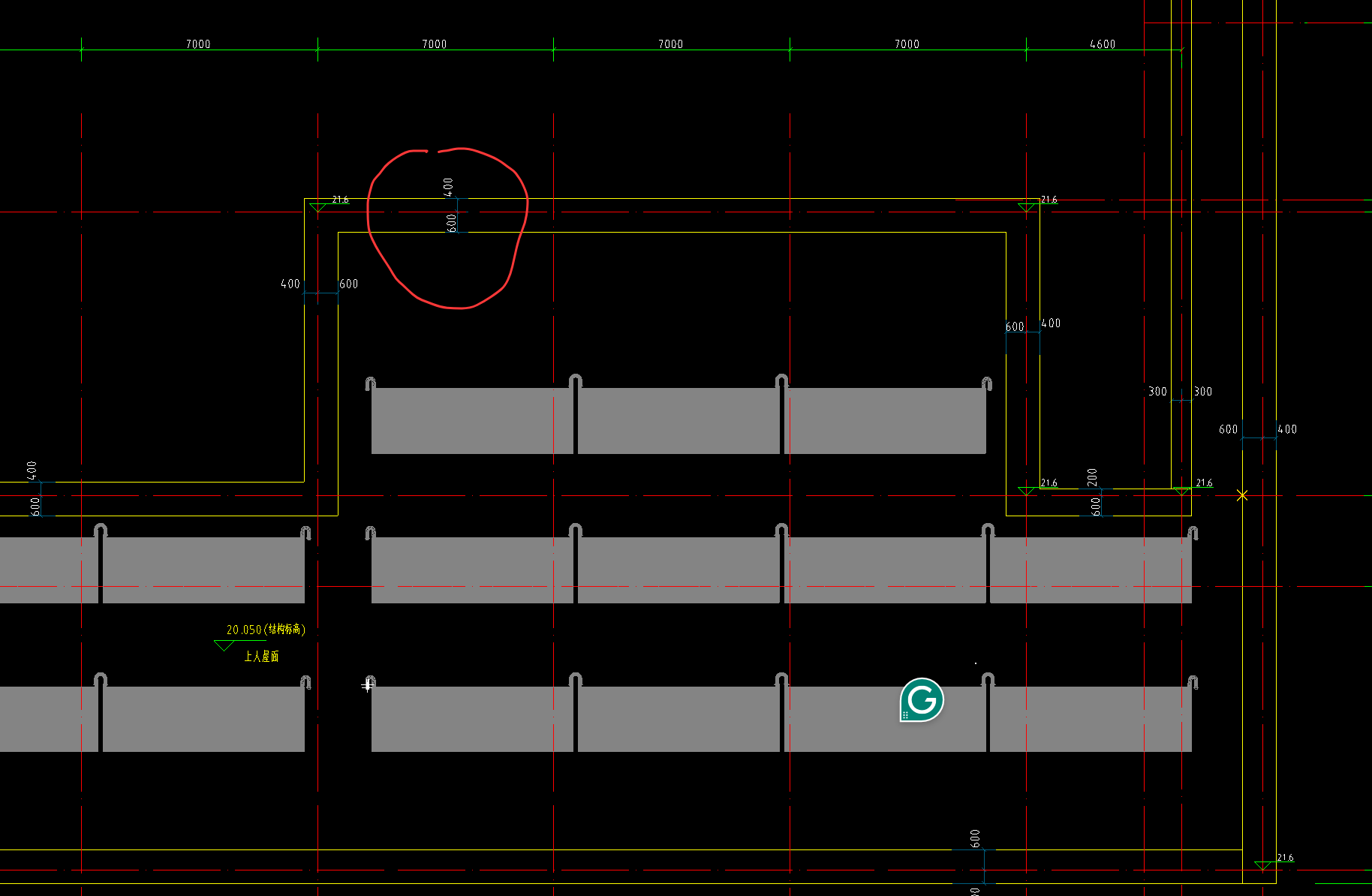
答疑:土建这俩屋面图 那么砌体墙尺寸应该照着哪张图画?

提问网友:helar
提问日期:2025-10-03 12:48:45

砌体墙土建


解答网友:GXZ

钻石专家

这是需要咨询设计确定的

解答网友:雪莲

铂金专家

结构图或者大样图

解答网友:开拓者

1,上图 是屋面标高处,墙厚应是女儿墙实际厚度,下图是 俯瞰图,看到的是女儿墙压顶的尺寸,

2,另外看看图纸比例对不对,哪有500的女儿墙啊,

0

评论0

请先
T/FJKS 001-2022 螺锁式连接预应力混凝土方桩技术规程(附条文说明).pdf
T/FJKS 001-2022 螺锁式连接预应力混凝土方桩技术规程(附条文说明).pdf
10分钟前 有人购买 去瞅瞅看
没有账号?注册  忘记密码?

社交账号快速登录

微信扫一扫关注
扫码关注后会自动登录网站