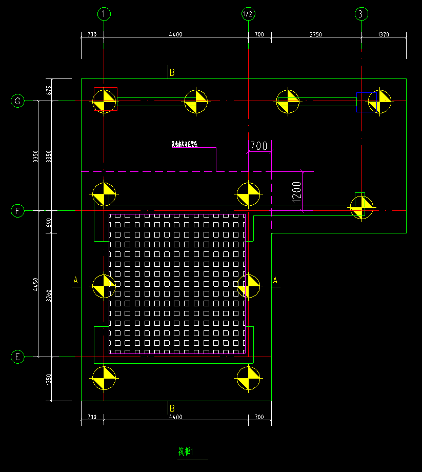
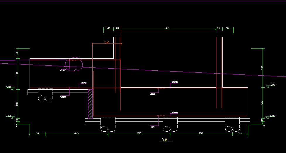
答疑:该筏板如何建模 不用计算钢筋

提问网友:奈何
提问日期:2025-09-30 10:52:02

筏板算钢筋答疑解惑


解答网友:欢乐心中飞雪

钻石专家

绘制筏板、分割筏板、调整筏板标高、设置筏板变截面

解答网友:石姐

铂金专家

不算钢筋,也就是不布置钢筋而已

绘制方法是一样的

不透厚度不同标高的筏板基础

设置90°的筏板基础变截面

再加剪力墙

解答网友:nh

钻石专家

用筏板设置可以,垂直的用剪力墙

0

评论0

请先
QGDW 11770-2025 项目可研设计、评审及批复文件编制规范(国家电网科〔2025〕495号)
QGDW 11770-2025 项目可研设计、评审及批复文件编制规范(国家电网科〔2025〕495号)
10分钟前 有人购买 去瞅瞅看
没有账号?注册  忘记密码?

社交账号快速登录

微信扫一扫关注
扫码关注后会自动登录网站