BIM
BIM吧
整体模型
族
其他资料
Dynamo
设计
方案
整体场景
单体模型
RHINO
施工图设计
结构
机电设计
材质渲染
D5素材
ENS素材专区
lumion素材
PS素材
规范图集
标准规范
行业图集
教程
视频
软件
Office
编程
造价
施工技术
计量计价
造价答疑
在线工具
管理
登录
注册
搜索
当前位置:
首页
造价
造价答疑
正文
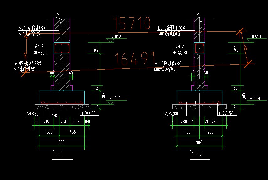
答疑:此图既是是条形基础也是砖基础吗?
6分钟前
造价答疑
1
推广
提问网友:Soobin
提问日期:2025-10-05 13:17:39
解答网友:xagcc
钻石专家
是的,就是条形急促
0
上一篇
答疑:图中是板负筋还是跨版受力筋?它们如何区分
下一篇
答疑:通风系统的排气扇在安装算量中算什么构件
猜你喜欢
造价答疑
答疑:老师们,自定义楼梯,楼梯井的栏杆怎么布置
提问网友:老头儿提问日期:2025-10-05 11:24:27解答网友:大家广联 ...
2分钟前
0
造价答疑
答疑:这里的纵向钢筋图怎么理解,这不是重叠了吗?
提问网友:.提问日期:2025-10-05 11:38:28解答网友:钢筋撑起半边天 ...
2分钟前
0
造价答疑
答疑:这个情况进线电缆怎么算,是从上一台配电箱引进电缆的吗?
提问网友:Slasssh提问日期:2025-10-05 11:49:02这个情况进线电缆怎么算,是从上...
3分钟前
0
造价答疑
答疑:通风系统的排气扇在安装算量中算什么构件
提问网友:甄璟弟提问日期:2025-10-05 13:12:56解答网友:xagcc ...
6分钟前
0
造价答疑
答疑:图中是板负筋还是跨版受力筋?它们如何区分
提问网友:Soobin提问日期:2025-10-05 11:08:44已采纳解答网友:大家广联 ...
6分钟前
0
造价答疑
答疑:房屋修缮工程工程量计算标准
提问网友:青岛提问日期:2025-10-05 11:11:12最新的房屋修缮工程工程量计算标准是...
6分钟前
0
评论
0
请先
登录
SL∕T 336-2025 水土保持工程质量验收与评价规范
9分钟前 有人购买
去瞅瞅看
在线客服
升级VIP
返回顶部
没有账号?
注册
忘记密码?
社交账号快速登录
已有账号?
登录
社交账号快速登录
微信扫一扫关注
扫码关注后会自动登录网站
使用其他方式登录/注册
评论0