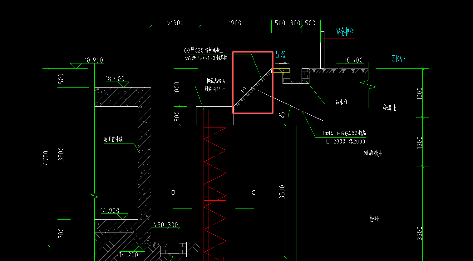
答疑:老师,桩间喷混凝土有加强筋那在上部护坡的位置也要算吗

提问网友:苍角殿
提问日期:2025-09-30 10:41:13

桩

上部

答疑解惑


已采纳
解答网友:河畔晨光

黄金专家

上部护坡的位置设计没有,不算。

0

评论0

请先
高清无水印 2020沪J110 人民防空警报设施专用房图集.pdf
高清无水印 2020沪J110 人民防空警报设施专用房图集.pdf
1分钟前 有人购买 去瞅瞅看
没有账号?注册  忘记密码?

社交账号快速登录

微信扫一扫关注
扫码关注后会自动登录网站