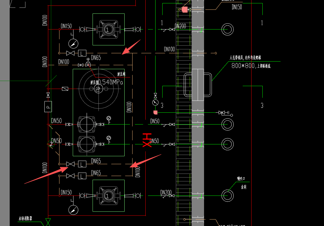
答疑:请问这段管是排水管吗

提问网友:q
提问日期:2025-09-30 09:17:46

排水管


解答网友:zhangy

黄金专家

给水管道。

解答网友:小草

结合系统图看,这种颜色一般是废水管

0

评论0

请先
【可下载】电力建设工程概算定额+预算定额(2018版)全套免费下载
【可下载】电力建设工程概算定额+预算定额(2018版)全套免费下载
10分钟前 有人购买 去瞅瞅看
没有账号?注册  忘记密码?

社交账号快速登录

微信扫一扫关注
扫码关注后会自动登录网站