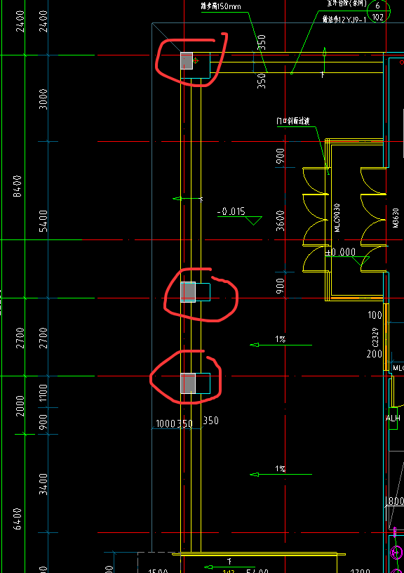
答疑:土建这个蓝色方块是什么?

提问网友:helar
提问日期:2025-09-29 20:52:33

土建


解答网友:SOFTICE

黄金专家

下层柱

解答网友:欢乐心中飞雪

钻石专家

应该是显示的下一层的框架柱,对照下一层柱图看看

解答网友:独行者

铂金专家

可能装饰柱,看下说明。

解答网友:GXZ

钻石专家

如果是判断为柱,就是要看结构平面布置图的标注,如果是装饰(如砌体)就是看建筑平面布置图,正常来讲如果是下层柱梁等,是用虚线表示的,不会用实线的方式

0

评论0

请先
135页!中国能建最新变电金具样本手册-xycost.com
135页!中国能建最新变电金具样本手册-xycost.com
10分钟前 有人购买 去瞅瞅看
没有账号?注册  忘记密码?

社交账号快速登录

微信扫一扫关注
扫码关注后会自动登录网站