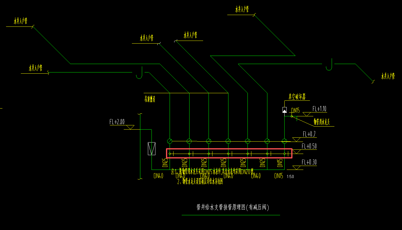
答疑:请问一下这个是什么 构建?应该用什么构建绘制?

提问网友:陌地。
提问日期:2025-09-29 17:11:08

答疑解惑


已采纳
解答网友:再见理想丶

黄金专家

截止阀

解答网友:大家广联

钻石专家

截止阀

0

评论0

请先
DZ/T 0401-2022 矿山地质工作规范.pdf
DZ/T 0401-2022 矿山地质工作规范.pdf
5分钟前 有人购买 去瞅瞅看
没有账号?注册  忘记密码?

社交账号快速登录

微信扫一扫关注
扫码关注后会自动登录网站