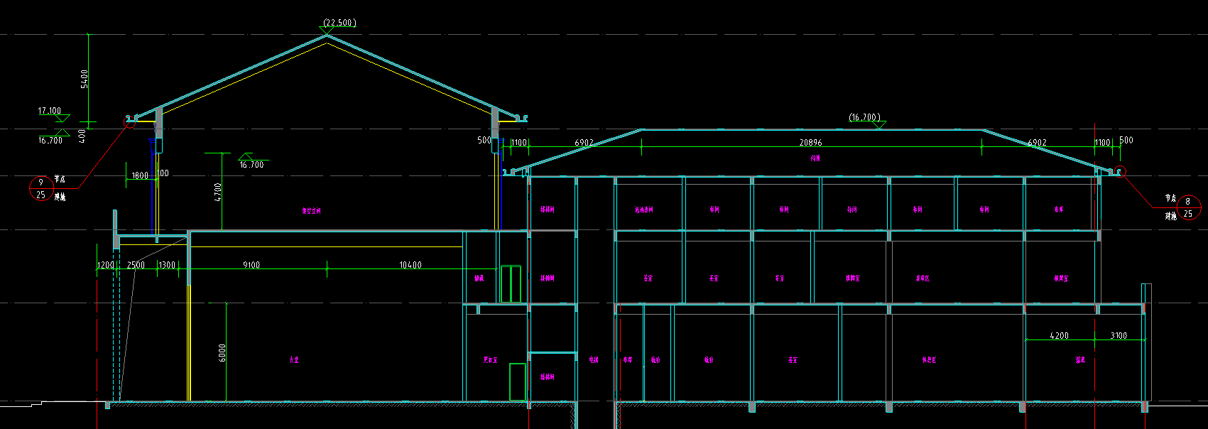
答疑:这个檐高要算到哪?

提问网友:77777
提问日期:2025-09-28 16:31:11

檐高


已采纳
解答网友:星霜荏苒

钻石专家

室外地坪到17.1的位置

解答网友:雪莲

铂金专家

算到17.1处

0

评论0

请先
装修工程避坑手册(2024年,100页)
装修工程避坑手册(2024年,100页)
刚刚 有人购买 去瞅瞅看
没有账号?注册  忘记密码?

社交账号快速登录

微信扫一扫关注
扫码关注后会自动登录网站