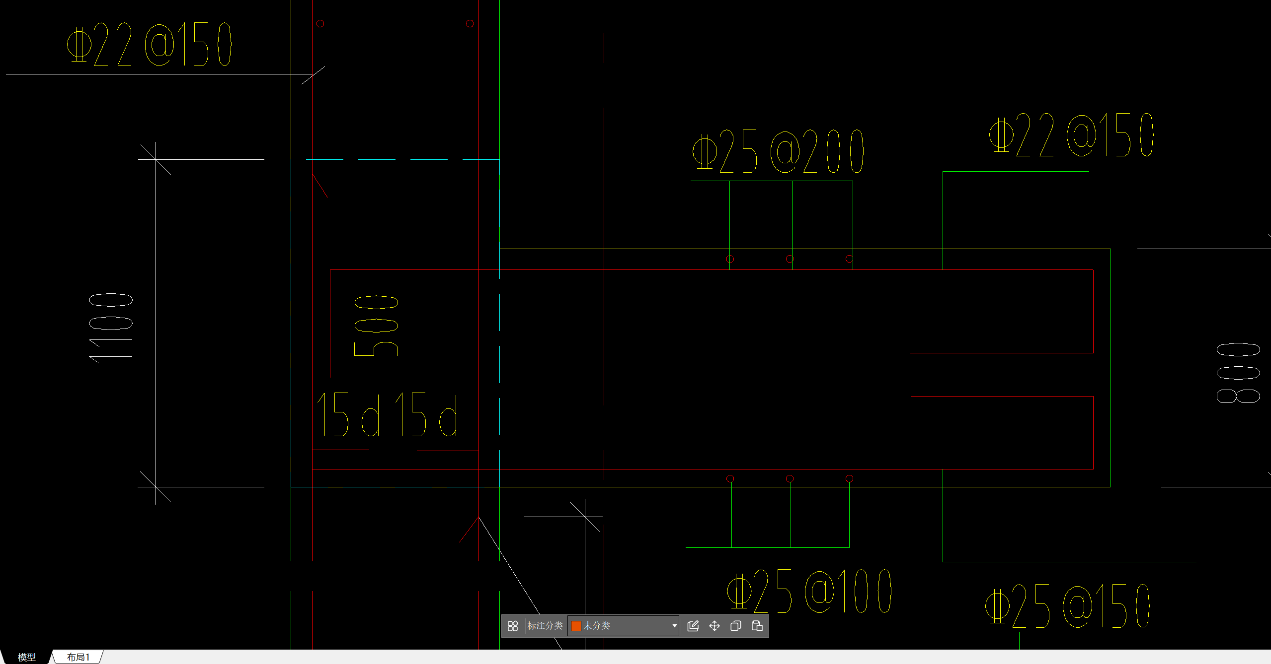
答疑:筏板基础面层钢筋伸入墙内不是到墙边剪一个保护层厚度,请问怎么改成图纸里那样啊

提问网友:嗯哼
提问日期:2025-10-08 15:00:40

筏板基础弯折

2025-10-08 15:01:19 补充

怎么改成图纸里到保护层弯折500


解答网友:故乡的云

白银专家

你好,你建模的时候可以把筏板画到剪力墙的外边线,再设置一下筏板和剪力墙连接的节点为设计图纸的尺寸。望采纳。

0

评论0

请先
电力工程水文气象计算手册 中国电力工程顾问集团中南电力设计院,中国电力工程顾问集团华东电力设计院,中国电力工程顾问集团公司主编 2011年版-书籍手册 - 电力电气
电力工程水文气象计算手册 中国电力工程顾问集团中南电力设计院,中国电力工程顾问集团华东电力设计院,中国电力工程顾问集团公司主编 2011年版-书籍手册 - 电力电气
9分钟前 有人购买 去瞅瞅看
没有账号?注册  忘记密码?

社交账号快速登录

微信扫一扫关注
扫码关注后会自动登录网站