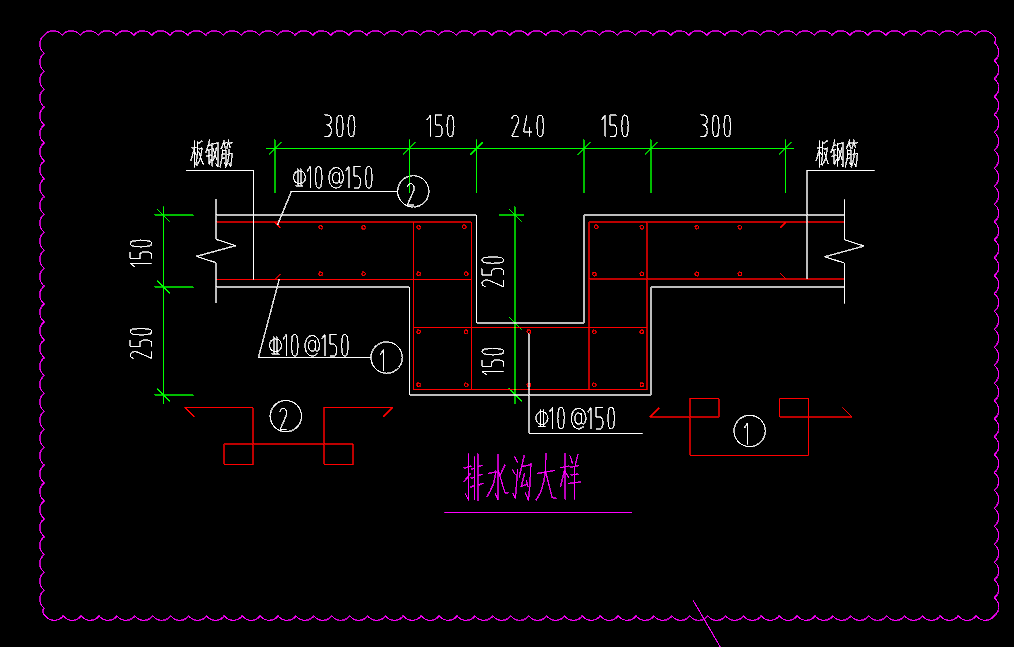
答疑:请问楼板排水沟、梁加高用什么画

提问网友:loser
提问日期:2025-09-28 15:36:41

楼板排水沟答疑解惑


解答网友:星霜荏苒

钻石专家

设置升降板

解答网友:天山雪豹

黄金专家

设置升降板处理

0

评论0

请先
DB61T 5102-2024 既有住宅建筑加装电梯技术标准
DB61T 5102-2024 既有住宅建筑加装电梯技术标准
5分钟前 有人购买 去瞅瞅看
没有账号?注册  忘记密码?

社交账号快速登录

微信扫一扫关注
扫码关注后会自动登录网站