答疑:钢结构图中这个8代表什么意思

提问网友:Iridescent
提问日期:2025-09-28 15:17:03

钢结构


解答网友:大家广联

钻石专家

焊缝 高度8

解答网友:石姐

铂金专家

结构图

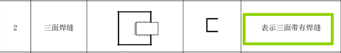
三面焊

焊缝高8mm

0

评论0

请先
高清OCR版17J008 挡土墙(重力式、衡重式、悬臂式) 无水印
高清OCR版17J008 挡土墙(重力式、衡重式、悬臂式) 无水印
6分钟前 有人购买 去瞅瞅看
没有账号?注册  忘记密码?

社交账号快速登录

微信扫一扫关注
扫码关注后会自动登录网站