BIM
BIM吧
整体模型
族
其他资料
Dynamo
设计
方案
整体场景
单体模型
RHINO
施工图设计
结构
机电设计
材质渲染
D5素材
ENS素材专区
lumion素材
PS素材
规范图集
标准规范
行业图集
教程
视频
软件
Office
编程
造价
施工技术
计量计价
造价答疑
在线工具
管理
登录
注册
搜索
当前位置:
首页
造价
造价答疑
正文
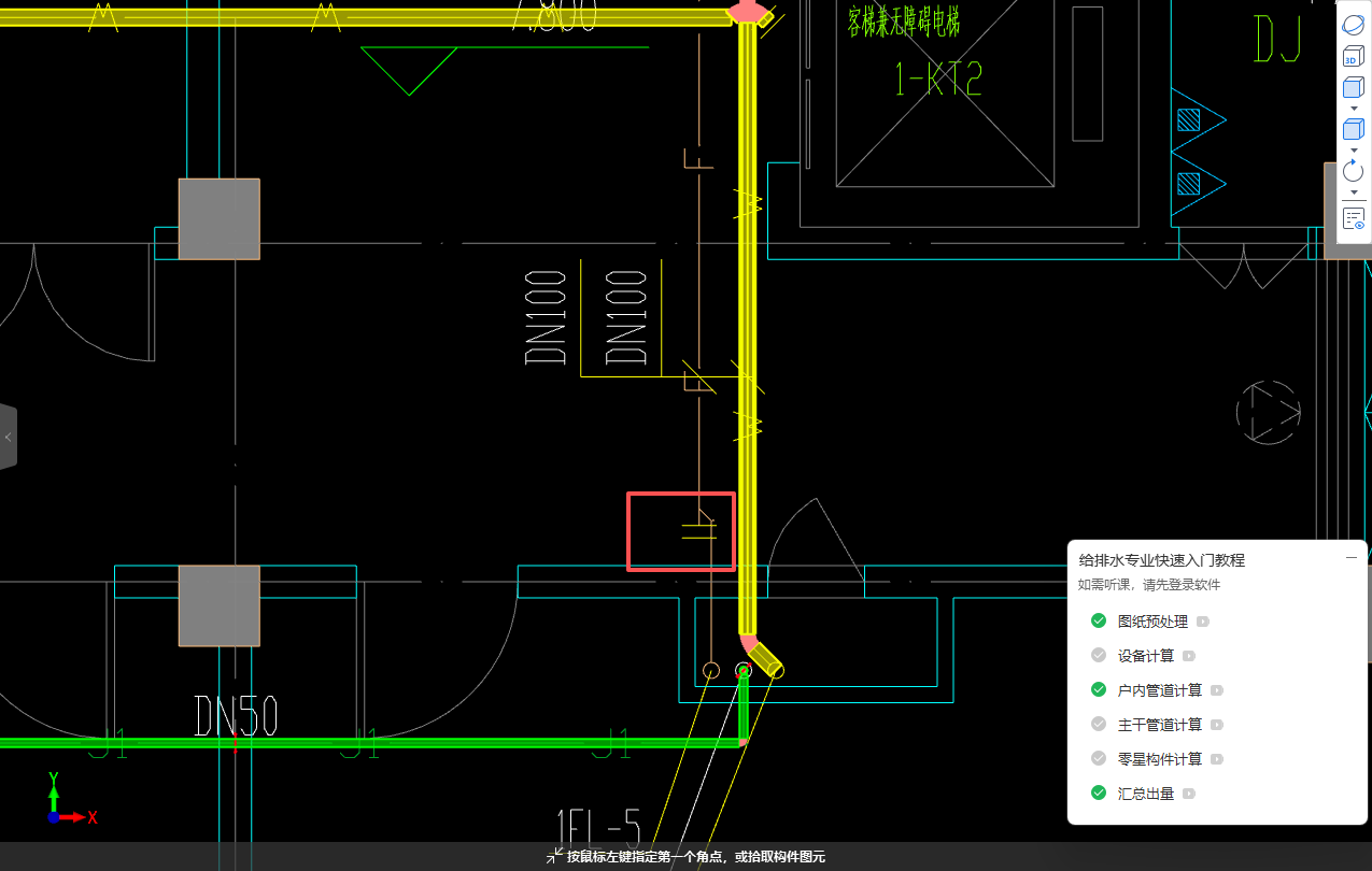
答疑:图中框选图例是什么
1周前
造价答疑
4
推广
提问网友:乱
提问日期:2025-09-28 14:57:58
已采纳
解答网友:大家广联
钻石专家
管堵(丝堵
0
上一篇
答疑:楼板采用金刚石水钻对放线位置的洞口实施无振动开洞 套什么定额?浙江省的
下一篇
答疑:请问截图原位标注是哪个梁的
猜你喜欢
造价答疑
答疑:筏板基础面层钢筋伸入墙内不是到墙边剪一个保护层厚度,请问怎么改成图纸里那样啊
提问网友:嗯哼提问日期:2025-10-08 15:00:402025-10-08 15:01:19 补充怎么改成图...
4分钟前
1
造价答疑
答疑:GCCP人材机找不到这种材料怎么上机
提问网友:fei提问日期:2025-10-08 15:00:52解答网友:大家广联 ...
4分钟前
1
造价答疑
答疑:老师,像这样的檩条,每一跨标高都不一样,如何设置标高随着屋面坡度走啊
提问网友:翔者归来提问日期:2025-10-08 15:01:45解答网友:啊隆 ...
4分钟前
1
造价答疑
答疑:1.工程部位:楼面1,综合考虑施工部位 ,5厚隔音涂料,隔音涂料套哪个子目
提问网友:红尘客栈提问日期:2025-10-08 15:01:501.工程部位:楼面1,综合考虑施工...
4分钟前
1
造价答疑
答疑:各位大神老师,这种管道的系统图都不给标高,结算可以吗
提问网友:糖糖提问日期:2025-10-08 15:04:35解答网友:啊隆 ...
5分钟前
1
造价答疑
答疑:这个后浇带的宽度B在哪看
提问网友:lovell提问日期:2025-10-08 15:16:59已采纳解答网友:清风拂面 ...
5分钟前
1
评论
0
请先
登录
中国石油天然气集团有限公司石油建设安装工程费用定额2022版.pdf
3分钟前 有人购买
去瞅瞅看
在线客服
升级VIP
返回顶部
没有账号?
注册
忘记密码?
社交账号快速登录
已有账号?
登录
社交账号快速登录
微信扫一扫关注
扫码关注后会自动登录网站
使用其他方式登录/注册
评论0