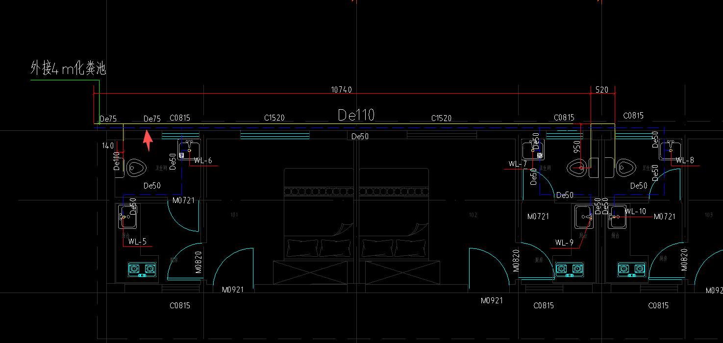
答疑:这条是75的还是50的?

提问网友:cong
提问日期:2025-09-09 11:00:37

答疑解惑


已采纳
解答网友:可遇难求

钻石专家

是50的

解答网友:米老鼠

铂金专家

虚线是50的

黄色实线是75的

解答网友:河畔晨光

黄金专家

是50管

解答网友:小野猫

铂金专家

是75的

0

评论0

请先
高清无水印 17S705 海绵型建筑与小区雨水控制及利用 替代10SS705 海绵城市图集.pdf
高清无水印 17S705 海绵型建筑与小区雨水控制及利用 替代10SS705 海绵城市图集.pdf
6分钟前 有人购买 去瞅瞅看
没有账号?注册  忘记密码?

社交账号快速登录

微信扫一扫关注
扫码关注后会自动登录网站