1
卧室窗精细化设计
设计原则
1.原则:小开启,大固定;
2.开启扇宽度:650mm/700mm(不含安装间隙);
3.横梃距地面距离:1100mm/1000mm/900mm;
4.通风面积不够时:①调节开启扇宽度;②增加开启扇的数量。
注:自然通风开口面积不应小于该房间地板面积的1/20;
5.开启方向:①满足室外机的出入;②平窗避开床头位置;③飘窗无室外机影响时,尽量放到室内门对角线;
6.执手高度:1650mm/1600mm/1550mm;
7.推拉门:执手(内扇)位置便于日常使用。
8.通风面积计算方法:S=H*L(平开窗角度大于70°)
案例分享

设计要点:TC1818开启方向优先满足空调室外机的安装需求,为满足通风面积要求,开启扇宽度调整为700mm。
设计要点:TC2019优先满足室外空调机位安装。
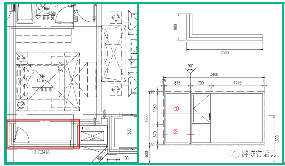
设计要点:ZJC3418开启无空调外机安装需求,放在窗户拐角位置,方便室外玻璃的清洁。
【案例2】:
设计要点:TC2417B为满足通风面积要求,做两个开启扇。
设计要点:TM11524带执手一扇靠床尾。(推拉门大样为内视图)
2
厨房窗精细化设计
No.1设计原则
1.开启形式应保证有效通风量
厨房里做饭较多喜欢“煎、炒、烹、炸”,烹饪过程中产生的油烟较大,除了使用抽油烟机之外,有时需要开窗辅助通风换气。一般住宅的厨房面积通常为4-7平方米,因此平开窗开启扇600mm(宽)×1200~1500mm(高),即可满足规范要求。但窗户的不同开启形式对于厨房的通风量有较大影响。在相同窗洞尺寸下,平开窗可以完全开启,而悬窗和推拉窗的有效开启面积要更小(图1),应在设计时加以注意。
2.通风量应可调控
人们在厨房操作时,往往既希望开窗换气,同时又要防止强风灌入室内。采用推拉窗相对容易控制通风量,而采用平开窗时,应增加风撑固定窗户开启的角度。
注意不与其他户形成对视。
3.窗洞位置宜接近洗涤操作区
根据规范要求,厨房窗户面积应符合窗地比要求,比值不应小于1/7(各地区或有区别),以保证足够的采光量。考虑窗洞位置时,应优先考虑接近主要操作区域,例如洗涤池附近,为白天的操作活动提供足够的光线。
No.2设计精细化
1.注意窗户和厨房家具、设备、吊顶高度的关系
1.1 橱柜:厨房中普遍都会装有吊柜,在确定窗户的位置时,应注意预留足够的墙垛确宽度保窗能正常开启,按照一般厨柜进深300-350mm考虑,留出350-400mm的墙垛较为合适。
1.2 设备由于燃气热水器对外强排的需要,热水器安装位置宜接近外墙,因而很有可能临近窗户。开设窗洞时也应考虑热水器的位置,避免窗开启扇与热水器发生矛盾。
2.洗涤池附近的窗扇下部可设固定窗扇
考虑到水龙头高度问题与中国成人平均身高,可以在窗户下部设置约400mm高的固定窗扇,使开启扇位于水龙头高度上方,同时可以预防物品从窗户里不慎坠落现象。
3.避免开启扇阻碍连续的烹饪操作
考虑到家务操作的动线关系,厨房洗涤池与炉灶间应有连续的台面。当窗扇开启后位于两者之间的连续台面上时,容易妨碍洗、切、炒的连续操作,影响台面置物,因而在设计时应注意避免出现这种情况。
3
卫生间窗精细化设计
No.1设计原则门窗类型:上悬窗、内开内倒窗、内平开窗
1、上悬窗:a.含义:滑撑装于窗扇两侧上方,向室外方向开启,此类窗型一般防雨性较好。b.设计优势:满足小通风换气要求,开启时不占使用空间,人性化考虑加下亮;c.尺寸规划原则:开启角度<30°且开启水平距离<300mm;d.执手高度:距离地面约1300(横档避开视线范围);e.通风面积:F窗*sinA°(A为开启角度;F窗为窗面积);f.钢化:七层及七层的以上外开扇玻璃需双钢化;g.玻璃压条应装在室内侧,作用:①防盗;②抗风压;③方便玻璃安装(规范《塑料门窗工程技术规程》6.2.21-6);
2、内开内倒窗(窗外有空调室外机,是否设计下亮与甲方商定)
a.含义:是一种可以向室内竖直方向开启90度(不加风撑),也可以向室内沿水平方向向下开启小角度透气的窗户;
b.设计原则:内平开方便空调室外机出入,开启扇开启不影响室内使用(案例五开启避开花洒,不设下亮;案例六向花洒方向开启,设400高下亮);常保持内倒状态,满足通风换气要求;
c.执手高度:距离地面约1550/1600/1650;
d.通风面积:明卫生间的直接自然通风开口面积不应小于该房间地板面积的1/20;
3、内平开窗(窗外有空调室外机,是否设计下亮与甲方商定)
a.含义:是一种可以向室内竖直方向开启90度(不加风撑);
b.设计原则:内平开方便空调室外机出入,开启扇开启不影响室内使用(案例五开启避开花洒,不设下亮;案例六向花洒方向开启,设400高下亮) ;建议尺寸500~600mm(开启扇宽度过宽,开启会占室内使用空间)
c.执手高度:距离地面约1550/1600/1650;
 d.通风面积:明卫生间的直接自然通风开口面积不应小于该房间地板面积的1/20.
No.2设计案例
【案例3】:
设计要点:当遇到此种有空调室外机情况,需与甲方沟通选择哪种方案;开启扇开启方向、是否加下亮具体与甲方确认为准。
【案例5】:
设计要点:当遇到此类卫生间布置时,建议将窗洞口调整至马桶正后方,具体以甲方确认为准。














 
                 
                 
                 
                 
                

评论0