提问网友:always.
提问日期:2026-01-18 13:05:30
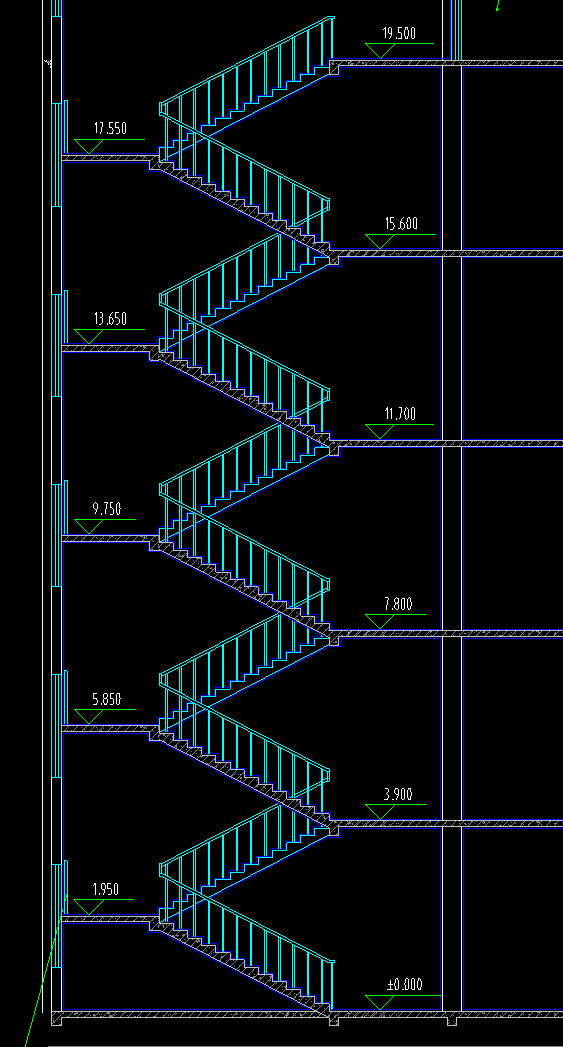
解答网友:竹风
白银专家
21个
每个转折俩弯头
起步弯头一个
最顶部弯头两个,因为需要增加一个落差弯头(水平高不低于1.1m,和斜高0.9m有一个落差)
可参照下图
解答网友:大庆张工
黄金专家
20个,其中平台弯和栏杆最下端都设1个
解答网友:可遇难求
钻石专家
每个楼梯转折处2个弯头,共18个。
解答网友:GXZ
钻石专家
19个弯头,栏杆在斜梯转弯每处是2个,楼梯顶层转楼板有1个,栏杆起步位置显示是不需要弯头
解答网友:xagcc
钻石专家
每个梯段弯折节点两个弯头
解答网友:一路向前
白银专家
18个




评论0