提问网友:张君宝
提问日期:2026-01-18 10:58:25
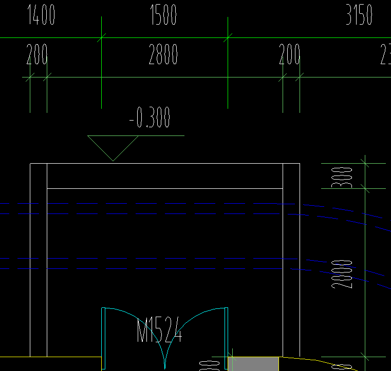
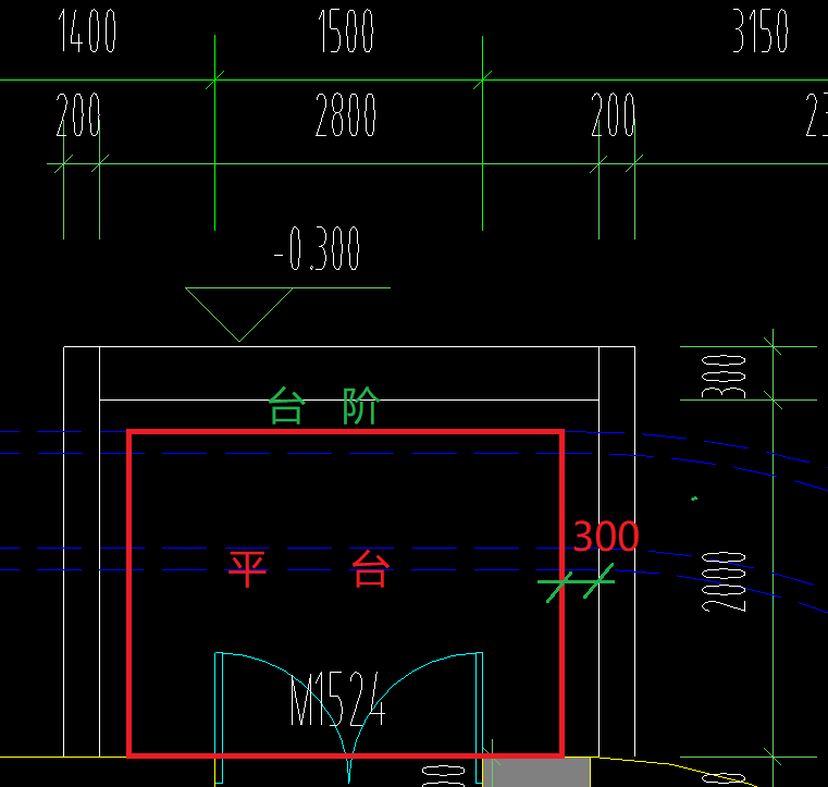
1.粘贴石材面是计算台阶水平投影面加立面展开面价吗?
2.台阶混凝土和37灰土垫层是计算台阶水平投影面积吗?
如下图,应该怎样正确计算以上两点工程量呢?台阶高度150mm
有好心人能帮我区分下吗?
解答网友:可遇难求
钻石专家
1.粘贴石材面是计算台阶水平投影面加立面展开面积。(踏步宽+高)*踏步长+最顶300宽面积(其余是按平台计算)。
2.台阶混凝土是水平投影面积,37灰土垫层是计算垫层体积。
解答网友:天山雪豹
铂金专家
按计算的规则






评论0