答疑:这道梁上部钢筋怎么设置?

提问网友:苦咖啡
提问日期:2025-12-29 17:31:14

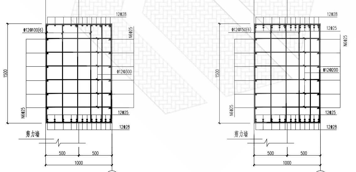
哪位大神可以指导一下,这道梁上部钢筋怎么设置,两头是两排的12C28和12C25的,中间是一排12C28的,这个怎么设置?

上部

梁上


解答网友:天涯浪子

黄金专家

指定支座长度即可答疑解惑

0

评论0

请先
DBJ51/T 171-2021 四川省玻纤增强复合保温墙板应用技术标准
DBJ51/T 171-2021 四川省玻纤增强复合保温墙板应用技术标准
5分钟前 有人购买 去瞅瞅看
没有账号?注册  忘记密码?

社交账号快速登录

微信扫一扫关注
扫码关注后会自动登录网站