提问网友:汉江河堤
提问日期:2025-12-29 15:41:44
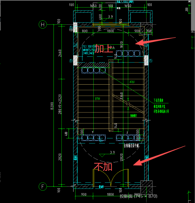
已采纳
解答网友:十年工程人(山姆代购)
白银专家
上面一个加上 下面一个不加
解答网友:可遇难求
钻石专家
下边部分不需要加。
解答网友:GXZ
钻石专家
楼梯平台列入楼梯计算(截图上面),楼层板列入楼层计算(截图下面)
解答网友:半瓶老陈醋
楼梯(包括休息平台,平台梁、斜梁及楼梯的连接梁)按设计图示尺寸以水平投影面积计算,不扣除宽度小于500mm楼梯井,伸入墙内部分不计算。当整体楼梯与现浇楼板无梯梁连接时,以楼梯的最后一个踏步边缘加300mm计算。




评论0