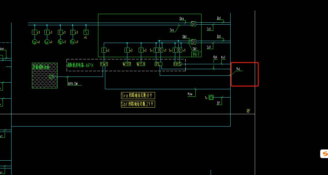
答疑:这些代表什么设备

提问网友:挖呀挖呀挖
提问日期:2025-12-28 10:02:05

答疑解惑


已采纳
解答网友:可遇难求

钻石专家

流量控制器(模块)

液位计(模块)

解答网友:星辰大海

钻石专家

广联达服务新干线

0

评论0

请先
NB/T 11812-2025 多能互补项目经济评价规范.pdf
NB/T 11812-2025 多能互补项目经济评价规范.pdf
1分钟前 有人购买 去瞅瞅看
没有账号?注册  忘记密码?

社交账号快速登录

微信扫一扫关注
扫码关注后会自动登录网站