提问网友:工地联盟
提问日期:2025-12-22 10:14:06
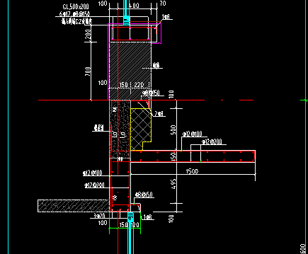
砌体墙的宽度是500,剪力墙的宽度是250,这样画对吗
2025-12-22 10:18:09 补充

解答网友:趁年轻去努力
黄金专家
你看下墙身大样图。一般砌体墙都和剪力墙或者梁一平
解答网友:雪莲
铂金专家
对
提问网友:工地联盟
提问日期:2025-12-22 10:14:06
砌体墙的宽度是500,剪力墙的宽度是250,这样画对吗
2025-12-22 10:18:09 补充

解答网友:趁年轻去努力
黄金专家
你看下墙身大样图。一般砌体墙都和剪力墙或者梁一平
解答网友:雪莲
铂金专家
对
评论0