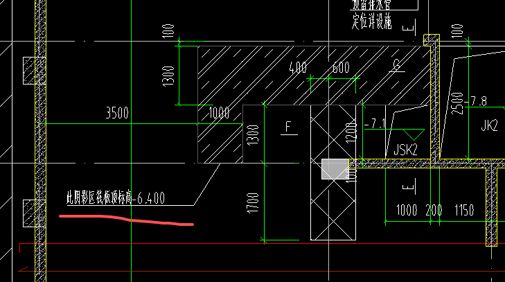
答疑:请问负一层标高怎么设置?有一块筏板基础标高不同,其他基础顶标高是-6.11

提问网友:王语嫣
提问日期:2025-12-12 09:30:32

标高不同筏板基础


解答网友:华睿工作室

白银专家

按-6.00~-0.16   基础其余部分按标高调整

解答网友:下雨天

白银专家

按大多数的那个标高来

0

评论0

请先
高清无水印 通桥(2021)5402-12 客货共线铁路钢筋混凝土框架箱涵 双孔 孔径:5.0m 铁路工程建设通用参考图集.pdf
高清无水印 通桥(2021)5402-12 客货共线铁路钢筋混凝土框架箱涵 双孔 孔径:5.0m 铁路工程建设通用参考图集.pdf
10分钟前 有人购买 去瞅瞅看
没有账号?注册  忘记密码?

社交账号快速登录

微信扫一扫关注
扫码关注后会自动登录网站