BIM
BIM吧
整体模型
族
其他资料
Dynamo
设计
方案
整体场景
单体模型
RHINO
施工图设计
结构
机电设计
材质渲染
D5素材
ENS素材专区
lumion素材
PS素材
规范图集
标准规范
行业图集
教程
视频
软件
Office
编程
造价
施工技术
计量计价
造价答疑
在线工具
管理
登录
注册
搜索
当前位置:
首页
造价
造价答疑
正文
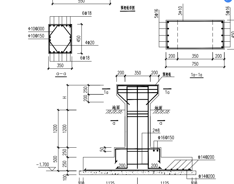
答疑:这些管线应该拉到左边吗,管径是多少
3天前
造价答疑
2
推广
提问网友:听风于野
提问日期:2025-12-08 10:54:12
解答网友:可遇难求
钻石专家
不是标注DN500。
0
上一篇
答疑:各位老师请问有《2017浙G44弹卡式连接预应力混凝土方桩》 吗
下一篇
答疑:蓄电池里面的电池我报送的是主材,审计给我改为了设备,是否合理,河北地区,乙供乙装
猜你喜欢
造价答疑
答疑:河南定额50厚细石混泥土地面套那个子目合适
提问网友:泉博提问日期:2025-12-11 15:56:07解答网友:ddxd ...
5秒前
0
造价答疑
答疑:这个柱墩如何画
提问网友:韦韦提问日期:2025-12-11 15:56:40解答网友:钢筋撑起半边天 ...
14秒前
0
造价答疑
答疑:楼梯钢筋含量一般占楼梯投影面积的多少?
提问网友:趁年轻去努力提问日期:2025-12-11 15:57:39想估算下楼梯的钢筋量有多少...
17秒前
0
造价答疑
答疑:请问这是代表一个风口+防火阀的示意 还是两个风口(带防火阀)
提问网友:安装提问日期:2025-12-11 15:44:28解答网友:蓝鲸 ...
20秒前
0
造价答疑
答疑:请问各位专家,室外电线电管敷设需要考虑到开挖土方量吗
提问网友:YYY提问日期:2025-12-11 15:44:39解答网友:蓝鲸 ...
23秒前
0
造价答疑
答疑:广东给排水管道接头、卡箍套哪个定额?
提问网友:岭南居士提问日期:2025-12-11 15:44:46解答网友:蓝鲸 ...
30秒前
0
评论
0
请先
登录
GB/T 16895.1~31 低压电气装置 全套标准PDF合集(2022更新)
6分钟前 有人购买
去瞅瞅看
在线客服
升级VIP
返回顶部
没有账号?
注册
忘记密码?
社交账号快速登录
已有账号?
登录
社交账号快速登录
微信扫一扫关注
扫码关注后会自动登录网站
使用其他方式登录/注册
评论0