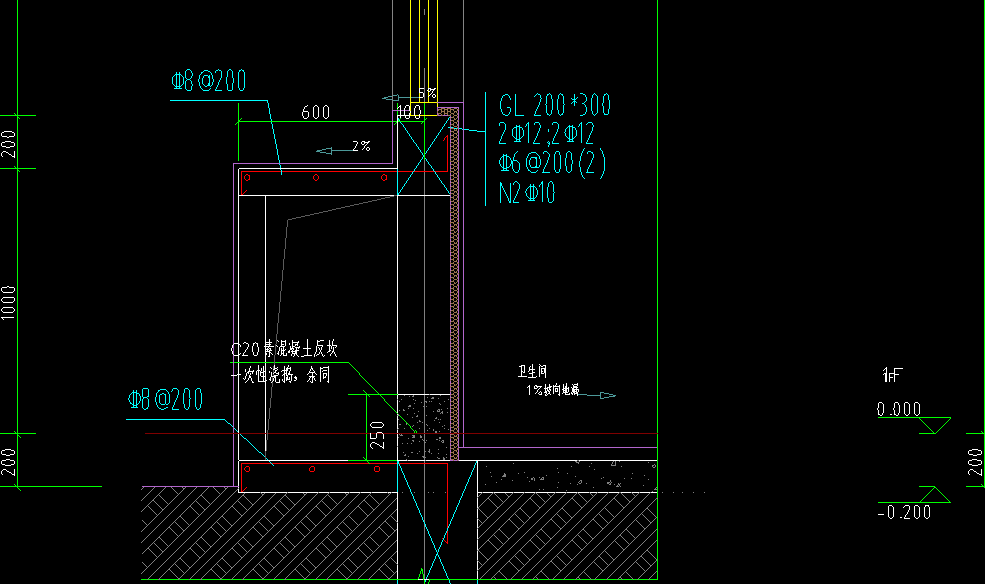
答疑:这个过梁是布置在窗口吗窗口已经有一个窗承台了

提问网友:汉江河堤
提问日期:2025-12-05 11:53:00

过梁


已采纳
解答网友:欢乐心中飞雪

钻石专家

布置过梁代替承台

解答网友:SOFTICE

铂金专家

过梁是布置在窗口

解答网友:xagcc

钻石专家

按这个GL信息计算

0

评论0

请先
DG_TJ08-2201-2023建筑信息模型技术应用统一标准
DG_TJ08-2201-2023建筑信息模型技术应用统一标准
3分钟前 有人购买 去瞅瞅看
没有账号?注册  忘记密码?

社交账号快速登录

微信扫一扫关注
扫码关注后会自动登录网站