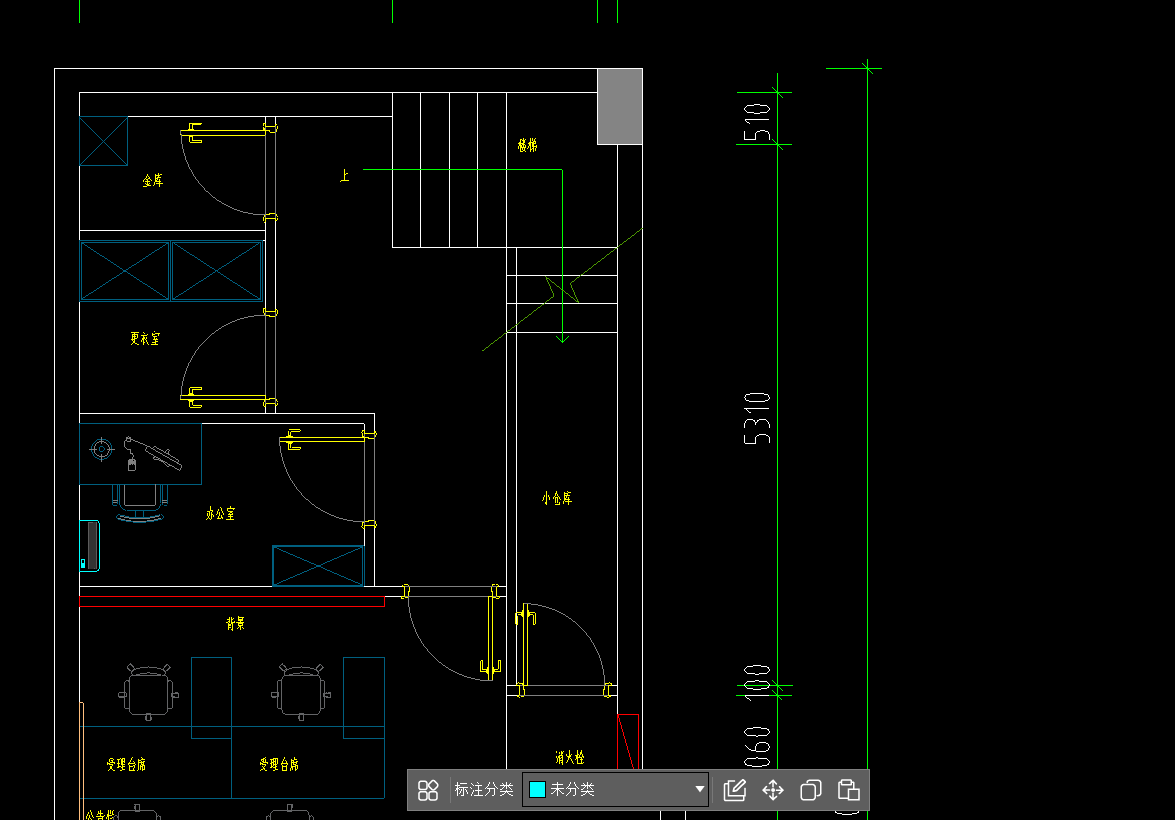
答疑:算仓库吊顶面积时,楼梯休息平台板那一块的位置算进去吗(联系不到设计/看不了现场)

提问网友:mmm
提问日期:2025-12-02 09:25:55

其实他这个图形我有点看不懂,第二个梯段左边不是有一堵隔墙,这个隔墙是不是穿过梯段一和平台板交界处的,没画出来顶面顶面积


解答网友:陈工

钻石专家

一般楼梯这一位置,不计算吊顶的。

0

评论0

请先
2024年住建厅发布《建筑工程常见质量问题防治手册(土建篇)》培训视频
2024年住建厅发布《建筑工程常见质量问题防治手册(土建篇)》培训视频
8分钟前 有人购买 去瞅瞅看
没有账号?注册  忘记密码?

社交账号快速登录

微信扫一扫关注
扫码关注后会自动登录网站