答疑:这个消防集水坑怎么绘制

提问网友:YIYI
提问日期:2025-11-28 17:06:56

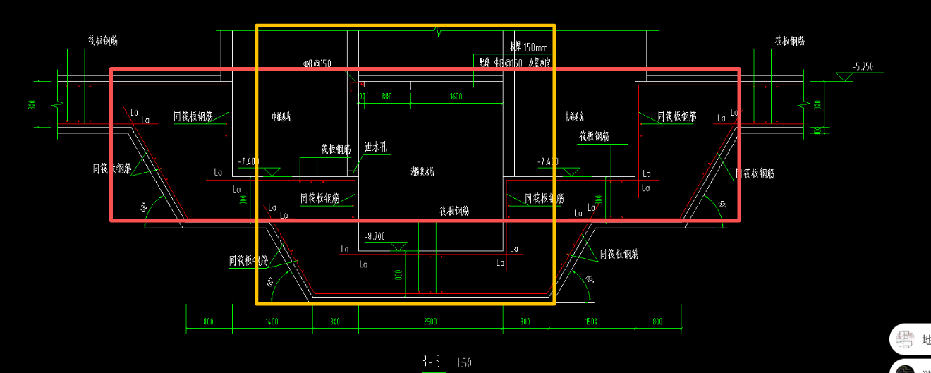
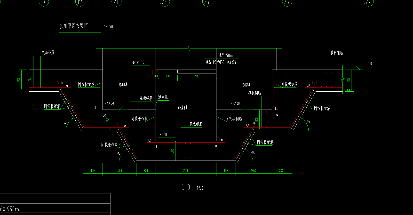
集水坑


解答网友:文竹

白银专家

用两个集水坑处理集水坑怎么绘制

解答网友:十年工程人

白银专家

外面的大的用筏板变截面处理

里面小的用积水坑处理

0

评论0

请先
武汉市房屋市政工程安全文明施工标准化指导图册(2024版)下载
武汉市房屋市政工程安全文明施工标准化指导图册(2024版)下载
8分钟前 有人购买 去瞅瞅看
没有账号?注册  忘记密码?

社交账号快速登录

微信扫一扫关注
扫码关注后会自动登录网站