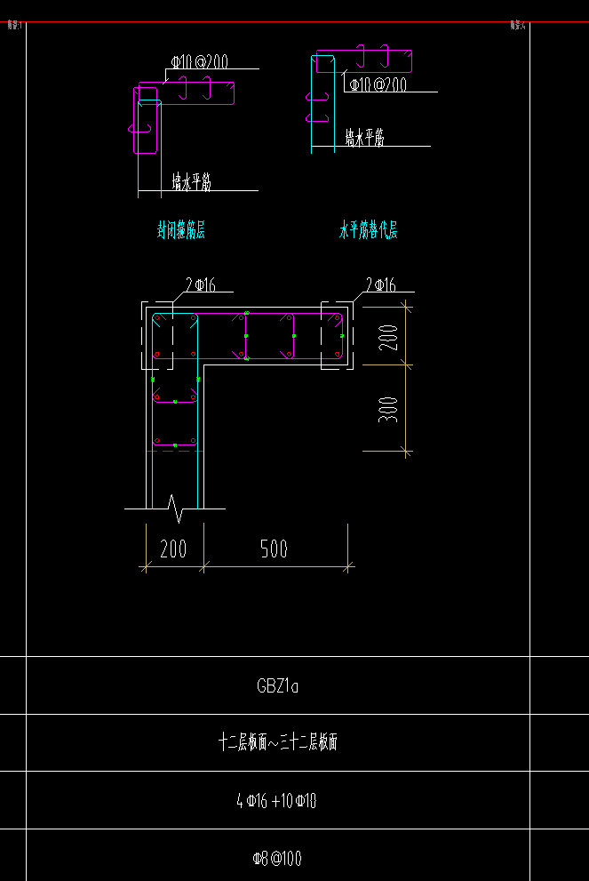
答疑:请教下这里的箍筋是否是C10-100

提问网友:街市
提问日期:2025-11-28 16:52:01

箍箍筋答疑解惑


解答网友:钢筋撑起半边天

钻石专家

是的

解答网友:星霜荏苒

钻石专家

C10@200

解答网友:雪莲

铂金专家

是C10-200

0

评论0

请先
NB/T 31009-2019 海上风电场工程设计概算编制规定及费用标准
NB/T 31009-2019 海上风电场工程设计概算编制规定及费用标准
9分钟前 有人购买 去瞅瞅看
没有账号?注册  忘记密码?

社交账号快速登录

微信扫一扫关注
扫码关注后会自动登录网站