BIM
BIM吧
整体模型
族
其他资料
Dynamo
设计
方案
整体场景
单体模型
RHINO
施工图设计
结构
机电设计
材质渲染
D5素材
ENS素材专区
lumion素材
PS素材
规范图集
标准规范
行业图集
教程
视频
软件
Office
编程
造价
施工技术
计量计价
造价答疑
在线工具
管理
登录
注册
搜索
当前位置:
首页
造价
造价答疑
正文
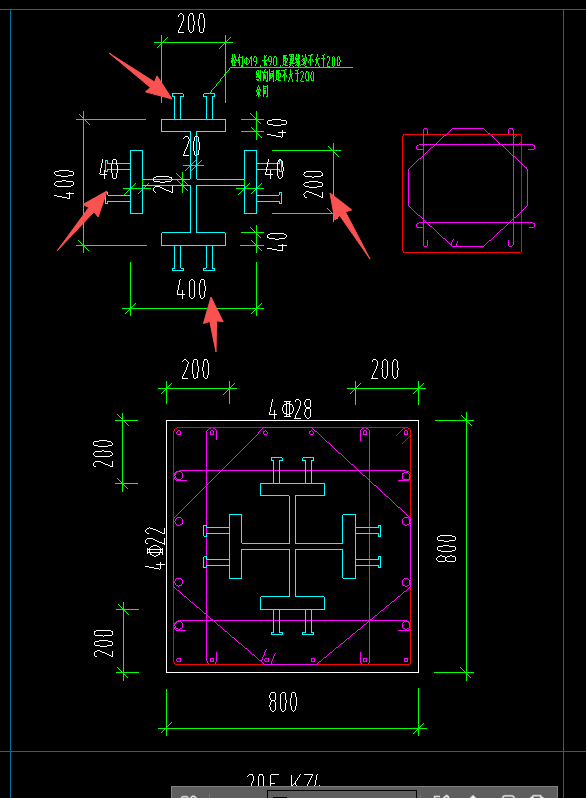
答疑:如何在型钢砼柱上布置栓钉
3天前
造价答疑
1
推广
提问网友:罗萱
提问日期:2025-11-28 15:29:01
解答网友:星辰大海
钻石专家
0
上一篇
答疑:帆布软接口
下一篇
答疑:关于栏杆压顶
猜你喜欢
造价答疑
答疑:请教一下边坡设置会影响工程量吗?
提问网友:LQW提问日期:2025-11-28 18:33:36解答网友:xagcc ...
3天前
2
造价答疑
答疑:江苏公路公路工程标准施工招标文件2018、490285315@qq.com
提问网友:斑马小鹿提问日期:2025-11-28 18:45:45已采纳解答网友:清欢 ...
3天前
2
造价答疑
答疑:请教关于广东定额工期的内容。
提问网友:刘工提问日期:2025-11-28 19:02:131栋为450天,2栋地上部分为220天,地...
3天前
2
造价答疑
答疑:剔槽这么套定额可以吗?
提问网友:栗子提问日期:2025-11-28 19:04:28解答网友:李先生 ...
3天前
2
造价答疑
答疑:请问老师签证的土方运距可以审减吗
提问网友:白提问日期:2025-11-28 19:07:08解答网友:清欢 ...
3天前
2
造价答疑
答疑:这句画是不是100墙超过3m是不是要下圈梁
提问网友:你好了吗提问日期:2025-11-28 19:15:36已采纳解答网友:李先生 ...
3天前
2
评论
0
请先
登录
TB/T 2887-2022 电气化铁路变电所用变压器.pdf
8分钟前 有人购买
去瞅瞅看
在线客服
升级VIP
返回顶部
没有账号?
注册
忘记密码?
社交账号快速登录
已有账号?
登录
社交账号快速登录
微信扫一扫关注
扫码关注后会自动登录网站
使用其他方式登录/注册
评论0