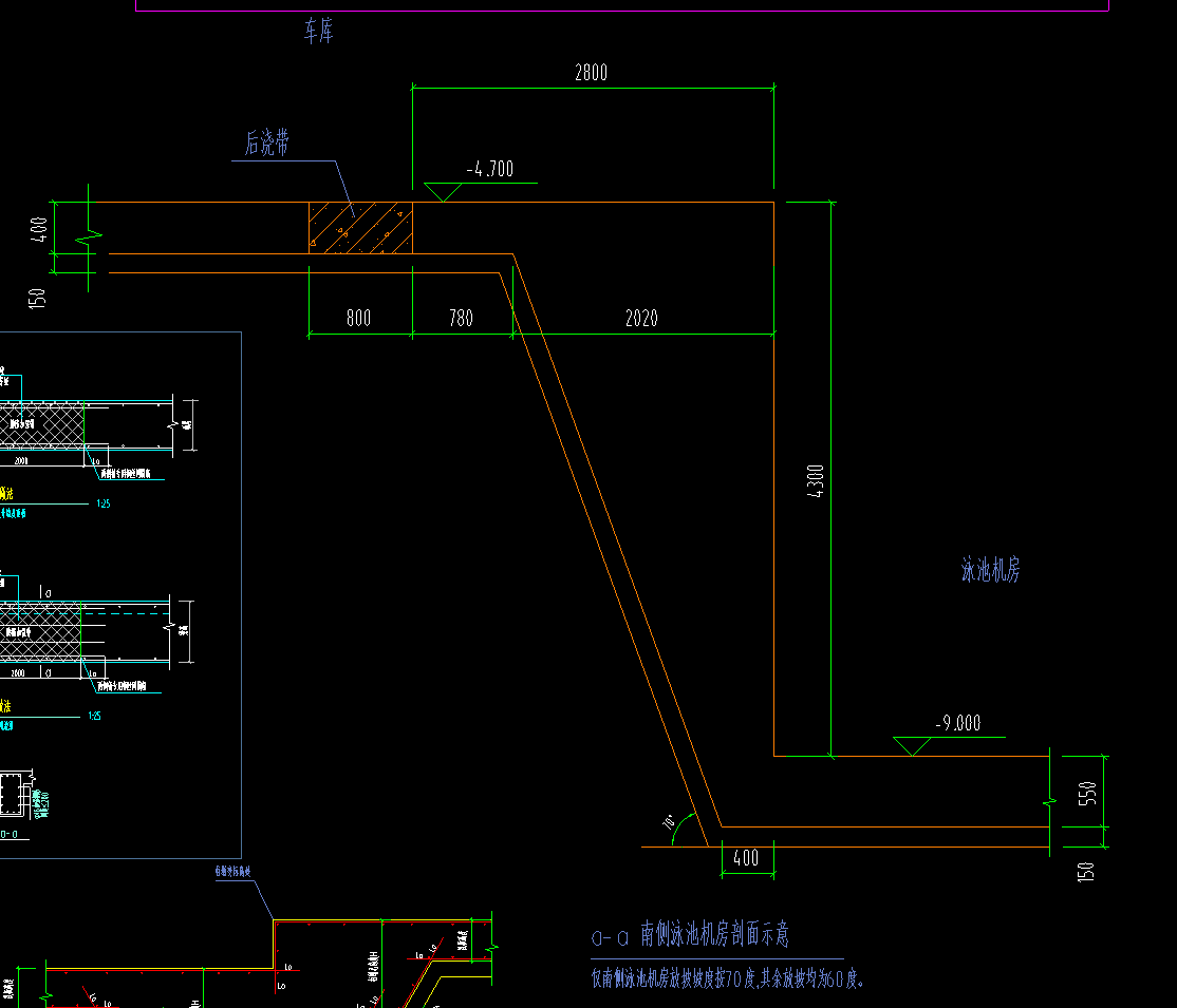
答疑:筏板一个标高在-4.7,另一个在-9,两个筏板高度间空缺的地方用变截面设置吗

提问网友:我不想上班
提问日期:2025-11-28 11:11:45

标高

2025-11-28 11:20:37 补充

变截面


解答网友:十年工程人

白银专家

是的 变截面处理

筏板基础要设置变截面,必须满足以下三点:

1.筏板标高存在高差;

2.俯视状态下必须相邻,之间不能有缝隙;

3.筏板必须绘制在相同分层

解答网友:放学丶别走

是的。

解答网友:石姐

铂金专家

是的

就是用筏板基础变截面处理的

高差空缺部位不需要挖方的

0

评论0

请先
T_CECS G_T35-2020 高寒高海拔地区公路工程建设项目造价补充标准PDF下载
T_CECS G_T35-2020 高寒高海拔地区公路工程建设项目造价补充标准PDF下载
刚刚 有人购买 去瞅瞅看
没有账号?注册  忘记密码?

社交账号快速登录

微信扫一扫关注
扫码关注后会自动登录网站