答疑:请问这个桩承台如何定义、布置?

提问网友:风轻扬
提问日期:2025-11-28 10:38:09

桩


已采纳
解答网友:星霜荏苒

钻石专家

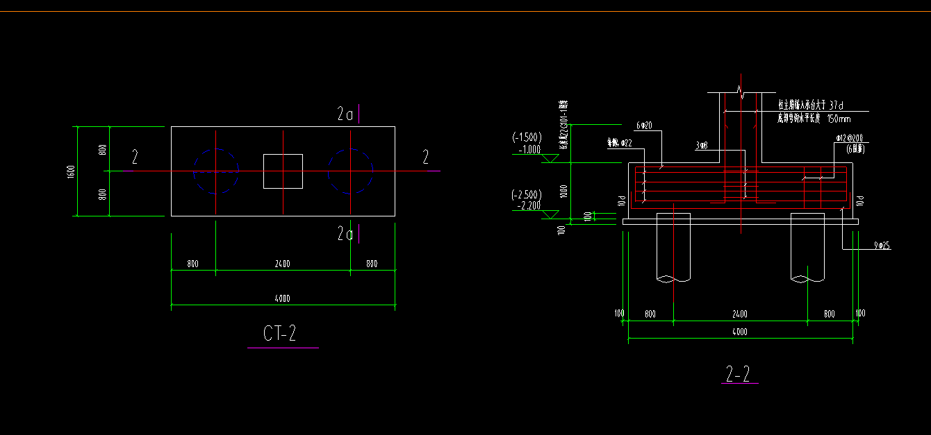
配筋形式:梁式配筋

上部钢筋6C20,下部钢筋9C25,箍筋C12@200(6),侧面钢筋8c22

解答网友:文竹

白银专家

选梁式配筋

解答网友:飞

承台配筋形式改为梁式配筋

解答网友:大庆张工

白银专家

找梁式承台

解答网友:星辰大海

钻石专家

桩承台

0

评论0

请先
彩色OCR、带书签 24DX002-1 建筑电气与智能化通用规范图示.pdf
彩色OCR、带书签 24DX002-1 建筑电气与智能化通用规范图示.pdf
刚刚 有人购买 去瞅瞅看
没有账号?注册  忘记密码?

社交账号快速登录

微信扫一扫关注
扫码关注后会自动登录网站