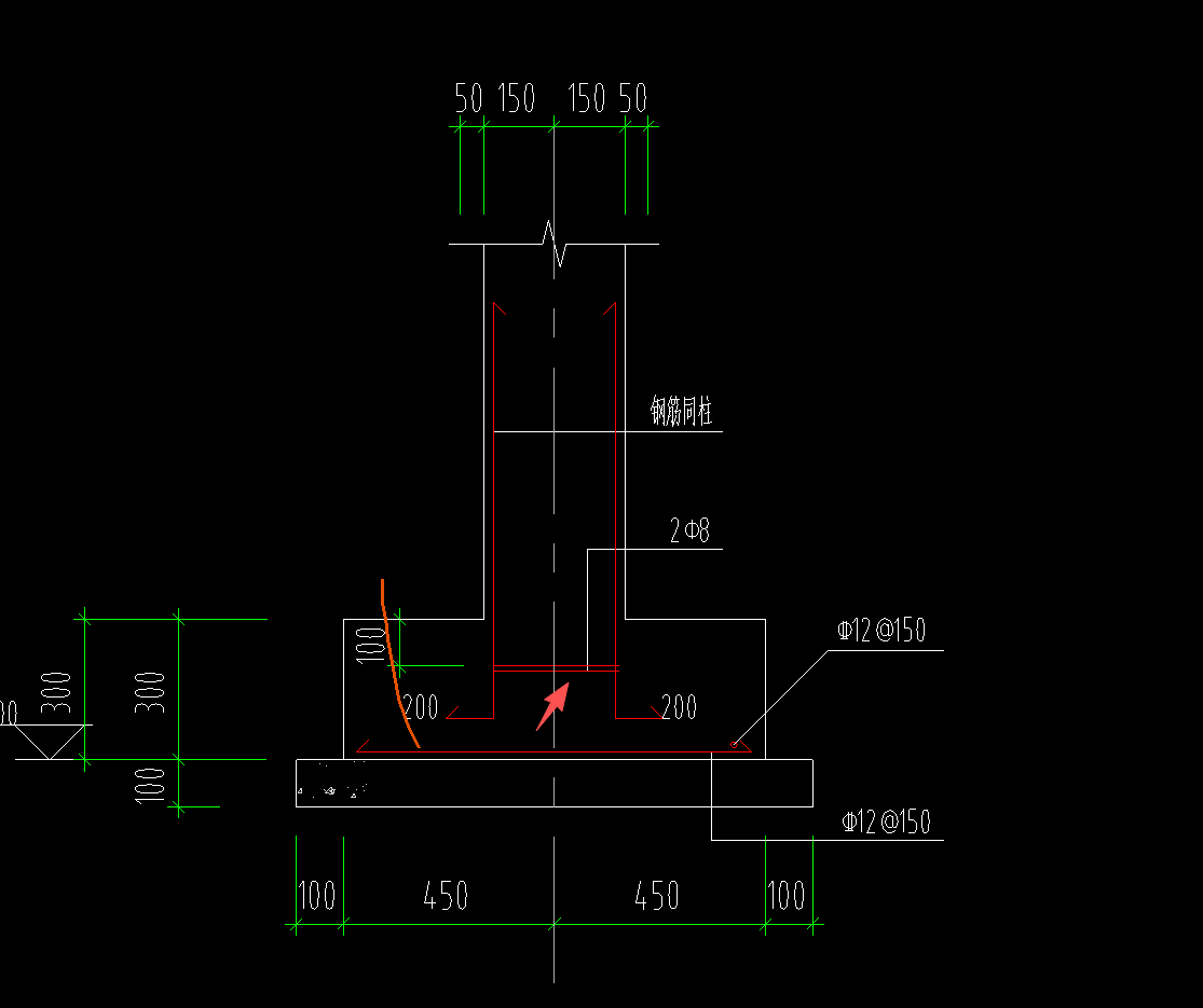
答疑:老师们这是加的箍筋还是直筋

提问网友:CH
提问日期:2025-11-27 17:26:36

直筋


解答网友:星霜荏苒

钻石专家

柱在基础内的箍筋

箍

解答网友:晶岭不肖生

黄金专家

柱在基础锚固区的箍筋

解答网友:蓝鲸

钻石专家

箍筋

回答正确望采纳并点赞,因为每一个专家都是免费服务

解答网友:娃哈哈

专家

柱在基础锚固区的箍筋

解答网友:十年工程人

白银专家

柱子在基础内的箍筋  在设置中修改

答疑解惑

解答网友:悠然的工程女

箍筋

0

评论0

请先
闽设协[2015]16号-福建省建筑工程施工图审查收费意见
闽设协[2015]16号-福建省建筑工程施工图审查收费意见
6分钟前 有人购买 去瞅瞅看
没有账号?注册  忘记密码?

社交账号快速登录

微信扫一扫关注
扫码关注后会自动登录网站