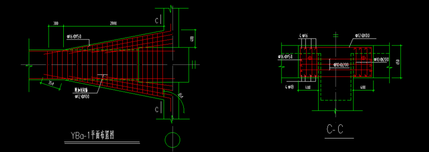
答疑:请问这种加腋怎么设置加腋部分厚度650,还有矩形侧边加腋怎么绘图

提问网友:十一
提问日期:2025-11-27 16:53:57

腋部


解答网友:GXZ

钻石专家

是与柱接触处650

解答网友:陈工

钻石专家

沿高度方向设置的。

厚度

答疑解惑

广联达服务新干线

建筑行业快速问答平台-答疑解惑

腋部

0

评论0

请先
【BIM应用】双线铁路独塔斜拉桥-深茂铁路潭江特大桥,全套BIM应用资料下载(含模型、动画、PPT、族库等)
【BIM应用】双线铁路独塔斜拉桥-深茂铁路潭江特大桥,全套BIM应用资料下载(含模型、动画、PPT、族库等)
8分钟前 有人购买 去瞅瞅看
没有账号?注册  忘记密码?

社交账号快速登录

微信扫一扫关注
扫码关注后会自动登录网站