答疑:筏板标高处理

提问网友:公子小白
提问日期:2025-11-27 09:48:24

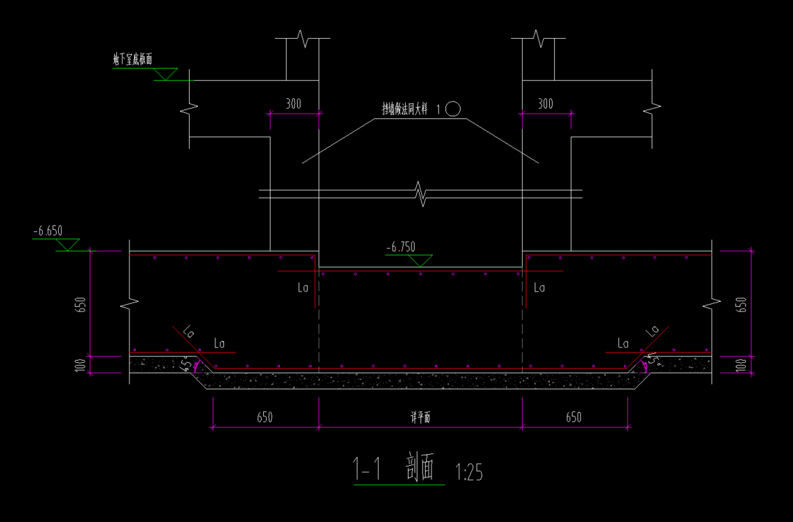
请教一下这样的筏板高差怎么绘制?

筏板高差


解答网友:执伞

白银专家

设置变截面

解答网友:星霜荏苒

钻石专家

筏板+集水坑

解答网友:雪花飘 飘

铂金专家

绘制筏板,修改标高,设置筏板变截面

0

评论0

请先
NB/T 11555-2024 抽水蓄能电站正常蓄水位选择专题报告编制规程.pdf
NB/T 11555-2024 抽水蓄能电站正常蓄水位选择专题报告编制规程.pdf
1分钟前 有人购买 去瞅瞅看
没有账号?注册  忘记密码?

社交账号快速登录

微信扫一扫关注
扫码关注后会自动登录网站